Ga naar inhoud

Te koop: appartement Molenaarserf 52 3991 KR Houten

Aangekocht

€ 519.000,- k.k.

Wat een heerlijke plek om te wonen…
Zo bij het Oude Dorp, voor de deur een groot grasveld met bomen en dichtbij alle voorzieningen die Houten te bieden heeft. Dit uitzicht geeft een enorm gevoel van vrijheid.
Dit kleinschalige appartementengebouw ligt in de wijk De Erven, waarbij deze fijne woning op de 2e etage is gesitueerd.

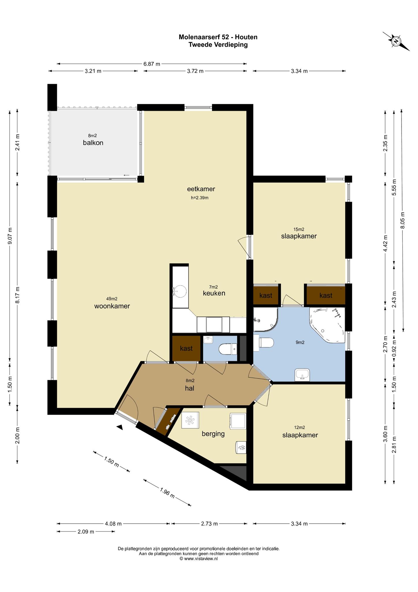
Een 3-kamerappartement van maar liefst 111 m2 met een prachtig balkon op het zuiden.
De entree aan de voorzijde biedt een beldrukkers en intercom-installatie om de beveiligde omgeving van het complex binnen te komen. Daarna is er een centrale hal met lift-installatie en trappenhuis. Je zoeft dus naar de 2e etage.
Aan deze hal grenzen slechts 2 woningen.

Het appartement op nr. 52:
De entree/hal is aangenaam ruim en aangrenzend bevinden zich de meterkast, toiletruimte, vaste kast en bijkeuken annex technische ruimte.
Bij het betreden van de woonkamer verrast de hoeveelheid licht en uitzicht, onder meer door de grote raampartijen aan de voorzijde.
Een grote zithoek en een zeer ruime eethoek in het verlengde van de keuken bestrijken totaal ca. 48 m2, daar komt nog een open keuken van 7 m2 bij. Deze enorme woonruimte biedt zelfs mogelijkheden voor de liefhebbers om een extra slaap-/werkkamer te realiseren.
Een schuifpui geeft toegang tot het ruime zonnige hoekbalkon van 8 m2 met aan 2 zijden open (zowel zuidoost als zuidwest).
De hoekopgestelde keuken biedt alle wenselijke apparatuur en een neutrale kleurstelling.
De 2 slaapkamers bevinden zich aan de achterzijde van het gebouw, een heerlijk koele locatie. De badkamers hebben een complete badkamer in het midden, voorzien van douche, ligbad, toilet en wastafel. De toegang vanuit de hoofdslaapkamer is bijzonder fraai omlijst met vaste kasten.

Aan de achterzijde van het gebouw is een parkeerstrook die specifiek door de eigenaren van het complex wordt gebruikt (geen vaste eigen plek), maar ook in de directe omgeving is er meer dan voldoende parkeergelegenheid.
Vanuit de centrale hal is er toegang tot de achterentree, dit is ook de route naar de berging. Deze is vanaf de straatzijde bereikbaar en biedt ruim voldoende plaats voor fietsen en andere opslag.

Wordt dit de plek waar u gelijkvloers kunt wonen en dus vooral mag genieten?

Oplevering: in overleg, indicatie december 2021
Servicekosten: € 225,- per maand, zeer actieve VvE

Interesse in dit huis? Schakel direct jouw eigen NVM-aankoopmakelaar in.
Jouw NVM-aankoopmakelaar komt op voor jouw belang en bespaart je tijd, geld en zorgen.
Adressen van collega NVM-aankoopmakelaars in Houten vind je op Funda.

  • 111 m2
  • 2

Kenmerken Molenaarserf 52

Overdracht

Vraagprijs€ 519.000,- k.k.

Oppervlaktes en inhoud

Woonoppervlakte111 m2
Inhoud330 m3

Bouw

SoortPortiekflat
BouwvormBestaande bouw
Bouwjaar1999
Dak typePlat dak
IsolatievormenVolledig geïsoleerd
EnergielabelC

Indeling

Aantal verdiepingen1
Aantal kamers3
Aantal slaapkamers2

Maandlasten

Ligging Molenaarserf 52

Voorzieningen

Centraal gelegen informatie over de buurt

Aantal inwoners

In de gemeente

49.300

Leeftijd

in percentages van totaal

Huishoudsamenstelling

in percentages van totaal

28%

20% NL

34%

20% NL

38%

20% NL

Vergelijkbaar woningaanbod