Ga naar inhoud

Te koop: woonhuis Adelboldstraat 48 3553 SJ Utrecht

Verkocht

€ 379.000,- k.k.

VANWEGE HET ENORM AANTAL REACTIES IS EEN AFSPRAAK PLANNEN VOOR NU NIET MEER MOGELIJK. WIJ HANTEREN EEN RESERVELIJST, MOCHT JE GEÏNTERESSEERD ZIJN VRAGEN WIJ JE EEN AANVRAAG IN TE DIENEN VIA FUNDA.

Ben je op zoek naar een sfeervolle jaren ’30- woning die je zonder grote werkzaamheden direct kan betrekken? Kom dan kijken bij deze zeer netjes onderhouden en afgewerkte eengezinswoning die is gelegen in de populaire woonwijk Zuilen-Zuid! Kenmerkend voor deze leuke woning zijn de mooie indeling, lichte afwerking en de besloten achtertuin met gunstige zonligging op het Zuidwesten. De begane grond is een heerlijke plek om te verblijven en heeft een praktische indeling met een leuke plek voor je eettafel, gezellige zitkamer en een keurige L-vormige keuken met inbouwapparatuur. Via de keuken bereik je de netjes aangelegde achtertuin met overkapping en zonwering. Tevens tref je in de tuin een mooie ruime berging aan en de achterom. Op de eerste verdieping zijn twee slaapkamers aanwezig en de keurige, modern betegelde badkamer met inloopdouche, tweede w.c. en natuurlijke lichtinval. De slaapkamer aan de achterzijde beschikt over een rolluik. De sfeervolle paneeldeuren dragen bij aan de jaren ’30 belevenis. Ook de tweede verdieping is zeer netjes afgewerkt, hier is een goed bruikbare slaapkamer aanwezig met dakkapel, kastruimte en een voorzolder waar je plek hebt voor je wasapparatuur. Ook op deze verdieping veel lichtinval door de Velux dakvensters en de raampartijen van de dakkapel.

De woning is voorzien van vloer, muur- en dakisolatie in combinatie met isolatieglas!

Voorzieningen bevinden zich in de directe omgeving zoals winkels, horeca, (basis-)scholen en het mooie Julianapark. De binnenstad en het Centraal Station zijn op de fiets in circa 15 minuten te bereiken! Tevens liggen uitvalswegen richting de A2 en A27 op enkele autominuten afstand. Parkeren is gratis, dus zonder parkeervergunning!

Bouwjaar: 1931 Perceel: 73 m2. Woonoppervlak: 76 m2.

INDELING:

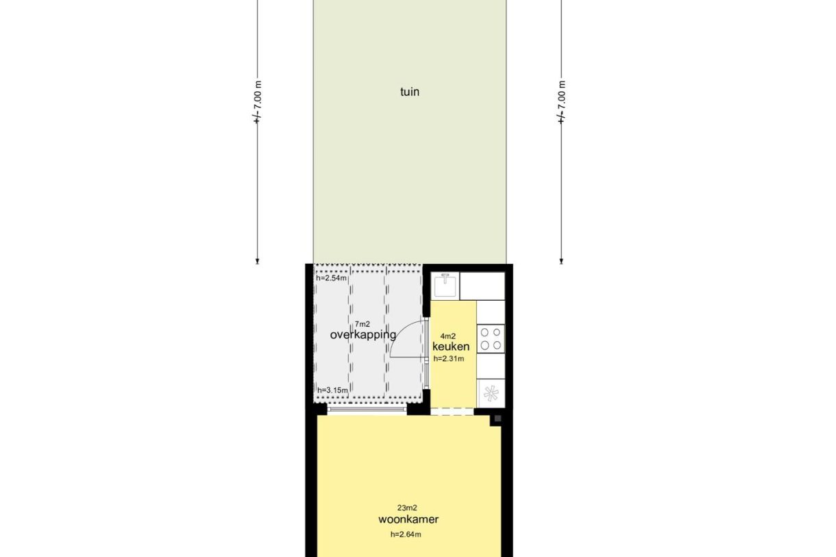
BEGANE GROND: entree/hal, meterkast, trapopgang me trapkast, toiletruimte met fonteintje, trapopgang naar de eerste verdieping en toegang naar de gezellige doorzon-woonkamer. De woonkamer is voorzien van een laminaatvloer met aan de voorzijde de plek voor de eettafel, de woonkamer en aansluitend de keuken. Deze keuken beschikt over de volgende inbouwapparatuur zoals een vaatwasser, koel-/vriescombinatie, gaskookplaat en afzuigkap. De netjes aangelegde achtertuin is voorzien van een overkapping en zonnedoek. Ruime berging met voldoende opbergmogelijkheden en een achterom.

EERSTE VERDIEPING: overloop, slaapkamer aan de voorzijde van de woning van 11 m2 met trapkast, slaapkamer achterzijde van 6 m2 met rolluik. De moderne, geheel betegelde badkamer heeft een natuurlijke lichtinval door een groot raam met mat glas en is voorzien van een ruime inloopdouche, wastafel, wandcloset en inbouwspotjes. Vaste trap naar…

TWEEDE VERDIEPING: voorzolder met tweetal Velux dakramen, bergruimte achter knieschotten, opstelplaats wasapparatuur, goed onderhouden c.v.-ketel (Vaillant 2007), toegang tot de derde slaapkamer van 8 m2 met dakkapel en vaste kastruimte.

BIJZONDERHEDEN:
– Eenrichtingsstraat; vrij parkeren;
– Binnenstad en NS-station op circa 15 minuten fietsafstand;
– Tuin met leuke overkapping op Zuidwesten;
– De woning heeft veel lichtinval;
– Geheel geïsoleerd;
– Vaste trap naar tweede verdieping;
– Zolderkamer met dakkapel;
– Voorzieningen op korte afstand;
– Woonklaar en direct te betrekken;
– Energielabel B;
– Exact gemeten;
– Bekijk voor een indruk de video en plattegronden.

  • 76 m2
  • 73 m2
  • 3

Kenmerken Adelboldstraat 48

Overdracht

Vraagprijs€ 379.000,- k.k.

Oppervlaktes en inhoud

Perceel oppervlakte73 m2
Woonoppervlakte76 m2
Inhoud258 m3

Bouw

SoortEengezinswoning
BouwvormBestaande bouw
Bouwjaar1931
Dak typeZadeldak
IsolatievormenDakisolatie, Muurisolatie, Vloerisolatie, Dubbelglas, HR glas
EnergielabelB

Indeling

Aantal verdiepingen3
Aantal kamers4
Aantal slaapkamers3
Aantal badkamers1

Maandlasten

Ligging Adelboldstraat 48

Voorzieningen

Centraal gelegen informatie over de buurt

Aantal inwoners

In de gemeente

343.038

Leeftijd

in percentages van totaal

Huishoudsamenstelling

in percentages van totaal

57%

20% NL

24%

20% NL

19%

20% NL

Vergelijkbaar woningaanbod