Ga naar inhoud

Te koop: woonhuis Sodawater 38 3991 HJ Houten

Beschikbaar

Bezichtiging plannen

€ 630.000,- k.k.

Ben je op zoek naar een echt ruime eengezinswoning op een leuke en kinderrijke locatie in ook nog eens in één van de leukste woonwijken van Houten? Zoek dan niet verder en maak een afspraak voor de deze fraaie, uitgebouwde eengezinswoning met 5 slaapkamers, dubbele dakkapel, tuin op het Westen en veel wooncomfort! Deze ruime eengezinswoning is wat ons betreft dan ook echt dé eengezinswoning bij uitstek; vooral in de zomer is het er heerlijk levendig; buren zitten gezellig buiten op de bankjes, kinderen spelen op de klimrekken, het is echt een fijne plek voor gezinnen!

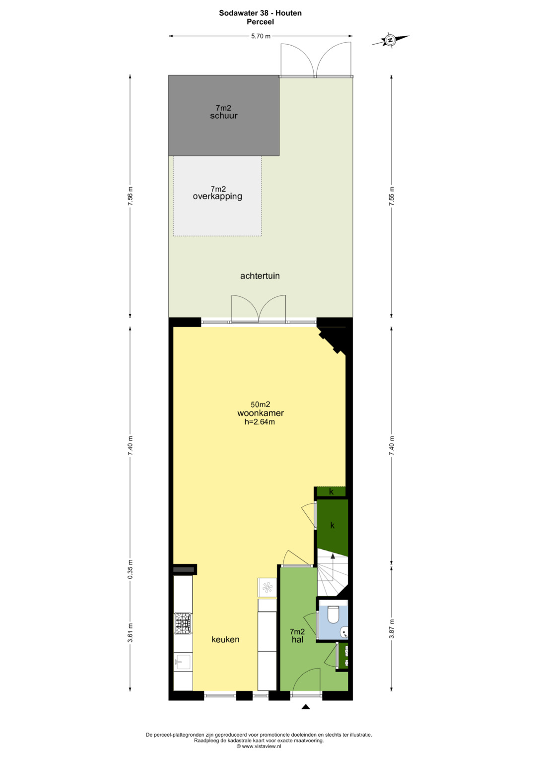
De ruimte die je bij deze woning binnen aantreft zal zeker aanspreken! Door de mooie breedte van bijna 5.40 meter geniet je, in combinatie met de gerealiseerde uitbouw, van een prachtige woonkamer met vele indelingsmogelijkheden. Niet alleen de ruimte is fantastisch; aan comfort en sfeer ontbreekt het hier zeker ook niet; de mooie gashaard draagt, in combinatie met de houten vloer, in de wintermaanden bij aan een prettige sfeer. De dubbele tuindeuren met zijramen zorgen voor een mooie lichtinval en toegang tot de op het Westen gesitueerde achtertuin. In deze achtertuin is het heerlijk vertoeven; de kinderen kunnen zich prima kunnen vermaken op groenzone voor de woning met enkele speeltoestellen. In de achtertuin heb je de beschikking over een houten berging met een overkapping. Deze berging is ideaal voor motorrijders of ouders met een bakfiets; door de gerealiseerde elektrische overheaddeur parkeer je hier op eenvoudige wijze je tweewieler!

De keuken is aan de voorzijde van de woning geplaatst en is voorzien van diverse inbouwapparatuur. Ook hier zorgt de grote raampartij weer voor en mooie lichtinval en heb je direct zicht op de groenzone voor de woning.

Op de eerste verdieping bevinden zich drie slaapkamers met mooie afmetingen! De ruime slaapkamer aan de achterzijde is uitgerust met een elektrisch rolluik over de volledige breedte! De badkamer is modern betegeld en is uitgerust met een ligbad, inloopdouche, wandcloset en een wastafel met daaronder kastruimte.

De grote zolderverdieping is optimaal ingedeeld! Hier tref je twee slaapkamers aan die beiden zijn voorzien van een dakkapel. De slaapkamer aan de voorzijde beschikt over een airconditioning zodat je hier in de winter en zomer kunt genieten van een aangenaam klimaat. De slaapkamer aan de achterzijde is extra ruim doordat deze zich gedeeltelijk over de volle breedte van de woning bevindt, ideaal voor thuiswonende kinderen met ruimte voor een groot bed, bureau en leuke zithoek.

Verder beschikt deze zolderverdieping over een lichte en ruime voorzolder met opstelplaats voor de wasapparatuur, c.v.-installatie. Door de breedte van de dakkapel profiteert ook de wasruimte van deze dakkapel! Er is bergruimte gecreëerd op de entresol op de twee slaapkamers en er zijn voldoende opbergmogelijkheden achter de knieschotten van het schuine dak.

Op korte afstand gelegen van scholen, kinderdagverblijven, winkelcentrum Castellum met NS-station en uitvalswegen.

De ligging is zeer kindvriendelijk waarbij er in de woonwijk diverse speelveldjes zijn gerealiseerd! Deze woning staat dan ook zeker garant voor vele jaren woonplezier!

Indeling:
Begane grond:
Entree/hal, meterkast met glasvezelaansluiting, toiletruimte met wandcloset en fonteintje, trapopgang naar de eerste verdieping.
Toegang tot de lichte woonkamer met trapkast, dubbele tuindeuren, zonnige tuin, houten berging, overkapping en een achterom. De woonkamer is ruim 38 m2 groot en afgewerkt met fraaie houten vloerdelen.

Brede keuken aan de voorzijde van de woning voorzien van de volgende inbouwapparatuur: 5 pits gaskookplaat, combi-oven, vaatwasmachine, Quooker en spoelbak. De inbouwapparatuur is circa 2 jaar oud.

1e Verdieping:
Overloop met toegang tot de 3 slaapkamers en een moderne badkamer voorzien van inloopdouche, wandcloset, wastafel met meubel een ligbad. Deze badkamer is volledig betegeld. De gehele verdieping is geheel voorzien van een laminaatvloer.

De afmetingen van de vertrekken op deze verdieping zijn als volgt:
Slaapkamer 1: 3.10m x 5.45m
Slaapkamer 2: 3.88m x 3.26m
Slaapkamer 3: 2.79m x 2.12m
Badkamer: 3.26m x 2.01m

2e Verdieping:
Voorzolder, overloop, toegang tot wasruimte die profiteert van aanwezig dakkapel, c.v.-ketel (Vaillant combiketel), mechanische ventilatiebox en opstelplaats voor de wasapparatuur.

Slaapkamer voorzijde van circa 9 m2 met dakkapel, airconditioning en bergruimte achter knieschotten.

Slaapkamer achterzijde van 16 m2 die eveneens is uitgerust met riante dakkapel.

Extra bergruimte bevindt zich op de slaapkamers waar een entresol is gerealiseerd.

Bijzonderheden:
-Uitgebouwde woonkamer;
-Plafondhoogte 2.64 meter;
-Vijf slaapkamers;
-Twee dakkapellen;
-Slaapkamer zolder voorzijde voorzien van airconditioning;
-Tuin gesitueerd op het Westen;
-Kinderrijke woonwijk met groen en speelvoorzieningen;
-Veel lichtinval aanwezig door mooie tuindeuren;
-Complete badkamer met douche én ligbad;
-Ruime keuken met moderne inbouwapparatuur
-Nabij gezellige oude dorp van Houten met dorpsplein en restaurants;
-Winkelcentrum Castellum met NS-station op ca. 5 min. fietsafstand;
-Basisscholen op korte afstand;
-Dichtbij uitvalswegen zoals A-27;
-Exact gemeten;
-Energielabel A.

  • 148 m2
  • 116 m2
  • 5

Kenmerken Sodawater 38

Overdracht

Vraagprijs€ 630.000,- k.k.
AanvaardingIn overleg

Oppervlaktes en inhoud

Perceel oppervlakte116 m2
Woonoppervlakte148 m2
Inhoud521 m3

Bouw

SoortEengezinswoning
BouwvormBestaande bouw
Bouwjaar2008
Dak typeZadeldak
IsolatievormenVolledig geïsoleerd
EnergielabelA

Indeling

Aantal verdiepingen3
Aantal kamers6
Aantal slaapkamers5
Aantal badkamers1

Maandlasten

Ligging Sodawater 38

Voorzieningen

Centraal gelegen informatie over de buurt

Aantal inwoners

In de gemeente

49.300

Vergelijkbaar woningaanbod