€ 449.000,- k.k.
Verrassend ruime en moderne eengezinswoning met een mooi vrij uitzicht over het water. In de voortuin kun je heerlijk genieten van de rust en het water. Aan de achterzijde heb je ook nog een heerlijke beschutte achtertuin, dit geeft in de zomer een heerlijke verkoeling. Ook is er nog een carport met een parkeerplaats op eigen terrein. De indeling is speels, zo is er op de begane grond een slaapkamer en een ruime leefkeuken. Op de eerste verdieping een riante woonkamer met een balkon. Door de unieke en speelse indeling is de woning uitermate geschikt voor praktijk- of kantoorruimte aan huis. De ligging is zeer centraal t.o.v. uitvalswegen, strand, treinstation Castellum (in 9 min sta je op Utrecht Centraal), winkels en buitengebied.
Kortom een heerlijke, comfortabele en energiezuinige woning met een fantastische ligging aan het water!
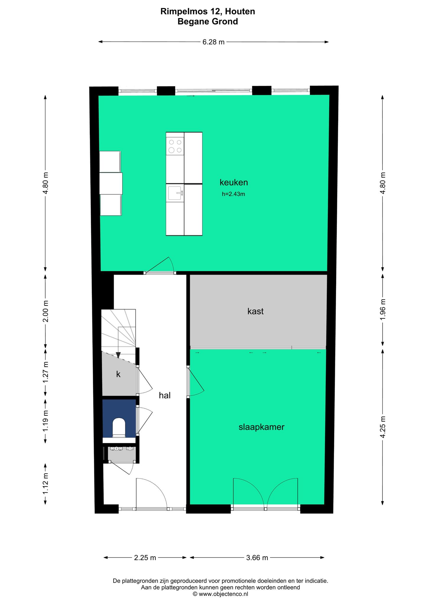
Begane grond; Entree, hal, meterkast, hangend toilet, trapkast, slaap/werkkamer aan de voorzijde met openslaande deuren naar de voortuin, ruime inloopkast, woonkeuken (Siematic) met een kookeiland voorzien van een 4-pits inductie kookplaat (2018), afzuigkap, Quooker, koelkast, vriezer, vaatwasmachine, oven en een combi magnetron.
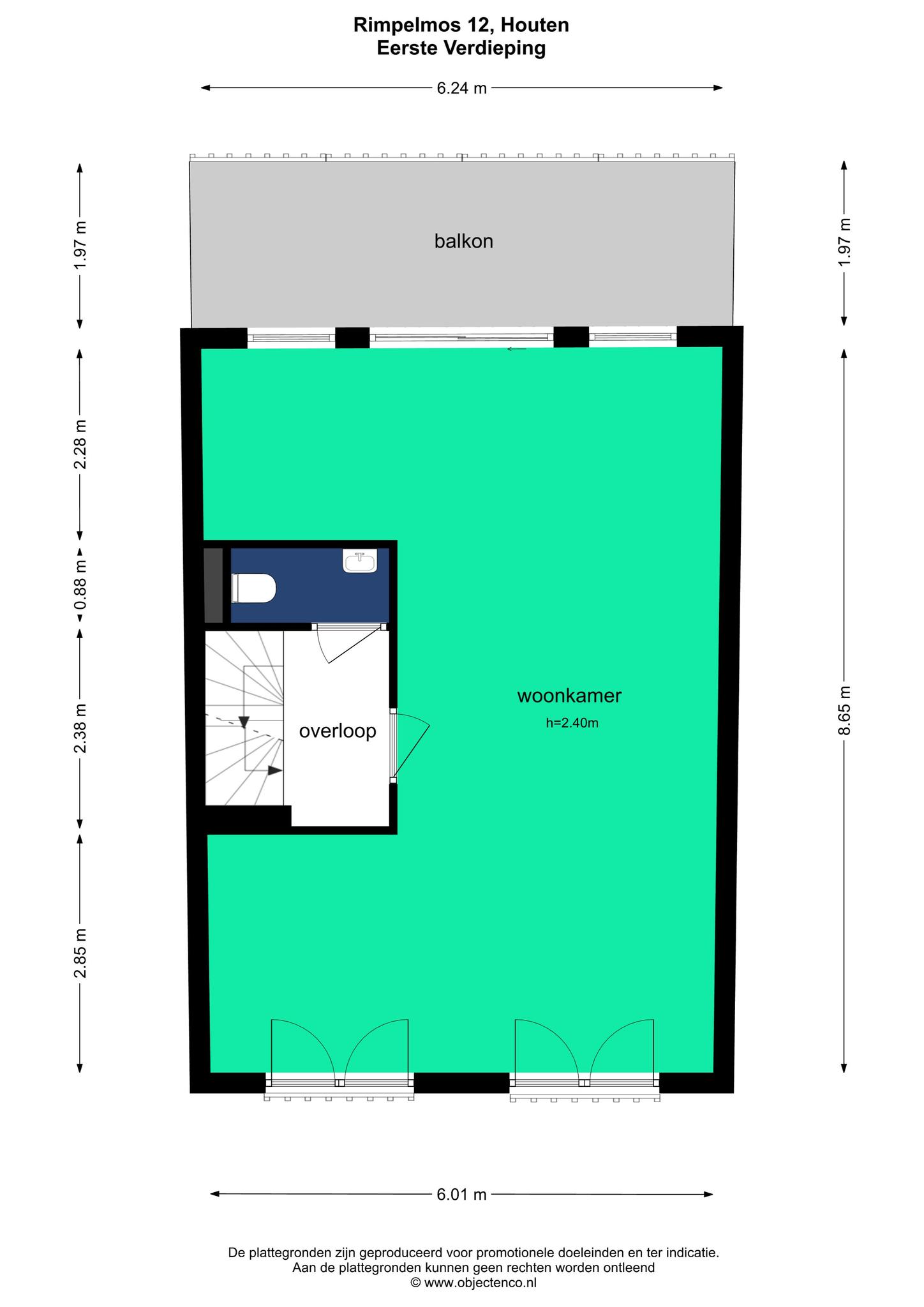
1e verdieping; Overloop, hangend toilet, ruime en lichte woonkamer met schuifpui die toegang geeft tot een balkon aan de achterzijde, 2 franse balkons aan de voorzijde.
2e verdieping; Overloop, slaapkamer aan de voorzijde met een vaste kast, slaapkamer aan de achterzijde, wasruimte met aansluitingen voor de wasmachine en droger, stookruimte, badkamer met ligbad, douche, 2 wastafels en een handdoekradiator.
Afmetingen;
Woon-/eetkamer 624/611 x 865
Balkon 624 x 197
Keuken 628 x 480
Slaapkamer bg 366 x 425
Slaapkamer 2 374 x 412
Slaapkamer 3 443 x 383
Badkamer 225 x 323
Wasruimte 217 x 309
Berging 446 x 276
Tuin 390 x 630
Bijzonderheden;
– Oplevering in overleg, indicatie sept/okt 2020
– Verwarming en koeling d.m.v. een warmtepomp (2019, lease)
– De gehele woning is voorzien van vloerverwarming
– Er is een oplaadpunt voor een elektrische auto aanwezig
– Het is een bijzonder energiezuinig huis, volledig geïsoleerd en voorzien van een WTW installatie
– De dakbedekking van het hoofd dak, schuur dak en balkon is in 2014 vervangen
– Het schilderwerk aan de binnenzijde is in 2019 uitgevoerd
– Er is voor kinderen volop speelgelegenheid in de wijk
– De parkeerplaats kan afgesloten worden met een hekwerk in dezelfde stijl als de balkons
– Optioneel zou de indeling van de 1e etage gewijzigd kunnen worden naar bijv. 3 extra slaapkamers, bergruimte en een extra badkamer (zie plattegronden)
Interesse in dit huis? Schakel direct uw eigen NVM-aankoopmakelaar in.
Uw NVM-aankoopmakelaar komt op voor uw belang en bespaart u tijd, geld en zorgen.
Adressen van collega NVM-aankoopmakelaars in Vianen vindt u op Funda.
- 175 m2
- 155 m2
- 3
Kenmerken Rimpelmos 12
Overdracht
| Vraagprijs | € 449.000,- k.k. |
|---|
Oppervlaktes en inhoud
| Perceel oppervlakte | 155 m2 |
|---|---|
| Woonoppervlakte | 175 m2 |
| Inhoud | 550 m3 |
Bouw
| Soort | Eengezinswoning |
|---|---|
| Bouwvorm | Bestaande bouw |
| Bouwjaar | 2001 |
| Dak type | Plat dak |
| Isolatievormen | Volledig geïsoleerd |
| Energielabel | A |
Indeling
| Aantal verdiepingen | 3 |
|---|---|
| Aantal kamers | 4 |
| Aantal slaapkamers | 3 |
| Aantal badkamers | 1 |
Maandlasten
Ligging Rimpelmos 12
Voorzieningen
Centraal gelegen informatie over de buurt
Aantal inwoners
In de gemeente
49.300