Ga naar inhoud

Te koop: woonhuis Rademakersgilde 146 3994 BX Houten

Verkocht

€ 459.000,- k.k.

Op groene locatie in woonwijk Het Gilde bieden wij je te koop aan deze eengezinswoning met ruime tuin op het Zuiden, tuingerichte woonkamer, twee ruime slaapkamers en een zolder met mogelijkheden!

Deze woning is een mooie kans als je op zoek bent naar je eigen thuis! Deze eengezinswoning ligt op korte afstand van winkelcentrum Het Rond met NS-station, diverse horeca en vele winkels. De vele fietsroutes door Houten zorgen ervoor dat je binnen korte tijd op je bestemming bent, dit kan het winkelcentrum zijn maar ook natuurgebied Nieuw Wulven liggen op korte afstand van de woning.

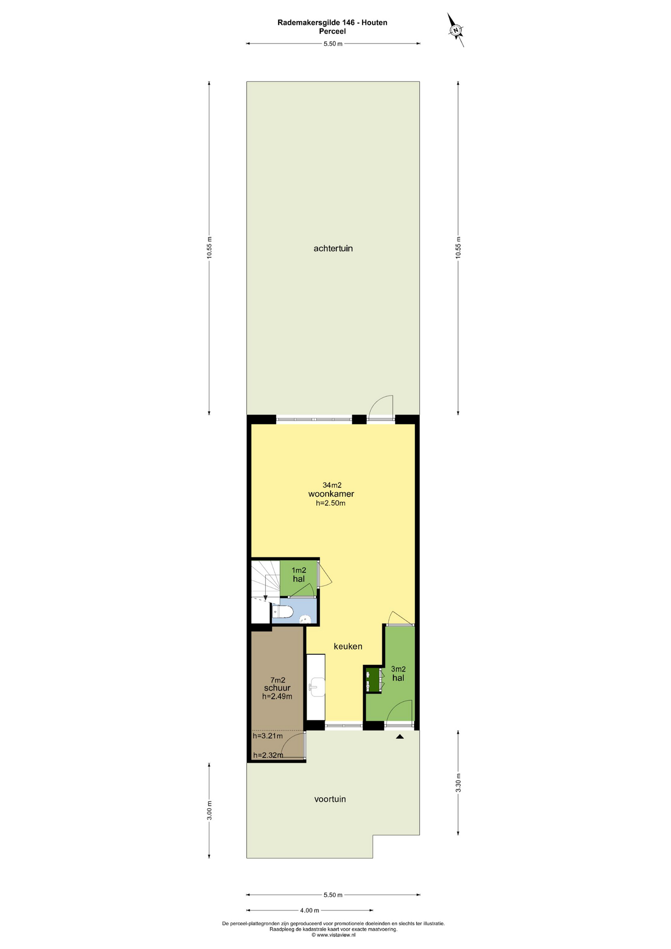
Je bereikt de woning via de voortuin waar je ook meteen toegang hebt tot de berging, hier plaats je je fietsen en heb je voldoende opbergmogelijkheden. Er zijn ook een aantal bewoners die deze schuur bij de woning hebben betrokken waardoor er een ruime keuken ontstaat. De tuin is ruim genoeg om een houten of stenen berging te plaatsen. De hal brengt je bij de eenvoudige keukenopstelling en de tuingerichte woonkamer, tussenhal met toiletruimte en de trapopgang naar de eerste verdieping. De tuingerichte woonkamer leent zich uitstekend om uit te bouwen.

Op de eerste verdieping zijn twee ruime slaapkamers aanwezig en tref je de nette badkamer aan met wastafel, douchegelegenheid, tweede w.c. en de opstelplaats voor de wasapparatuur. Het plaatsen van een dakkapel aan de achterzijde en/of splitsen van de slaapkamer behoort tot de mogelijkheden.

De zolderverdieping heeft eveneens vele mogelijkheden. Hier kun je aan de voorzijde een dakkapel laten plaatsen en één of twee slaapkamers realiseren. Zeer geschikt voor diegenen die een leuke start willen maken op de Houtense woningmarkt en wil genieten van alle voorzieningen op korte afstand!

INDELING:
BEGANE GROND: entree/hal, meterkast, toegang tot eenvoudige keukenopstelling aan de voorzijde. Tuingerichte woonkamer met toegang tot ruime achtertuin op het Zuiden. De tussenhal, met toiletruimte, brengt je naar de eerste verdieping.

Aan de voorzijde van de woning is de berging aanwezig, er zijn bewoners die deze berging bij de woning hebben betrokken en zo een grotere keuken hebben gerealiseerd. De tuin is overigens ruim genoeg voor het plaatsen van een berging.

EERSTE VERDIEPING: Overloop, slaapkamer aan de achterzijde van de woning over de volledige breedte met twee Velux dakramen. Slaapkamer aan de voorzijde met daarnaast de badkamer. De badkamer is licht betegeld en voorzien van een tweede w.c., douche, radiator en opstelplaats voor de wasapparatuur.

TWEEDE VERDIEPING: Open zolderverdieping met dakraampje en mogelijkheid tot realiseren slaapkamer en/of plaatsen dakkapel. Bij de trapopgang bevindt zich de c.v.-ketel en de mechanische ventilatiebox.

*bijzonder verkoopbepalingen*

-Op deze verkoop zijn een aantal bijzondere bepalingen van toepassing:
-Koper dient het kleurenschema 5 jaar in stand te houden zoals dat nu is, deze 5 jaar gaat in nadat de woning in eigendom is overgedragen aan de koper.
-Tevens dient koper de dakgoten aantoonbaar schoon te houden zodat er geen overlast ontstaat aan de naastgelegen woningen.
-Aangezien verkoper niet de woning zelf heeft bewoond kan deze niet instaan voor bepaalde eigenschappen, een koper mag, indien gewenst, de woning bouwkundig laten onderzoeken.
-De woning is ouder dan 40 jaar; de eisen die aan de bouwkwaliteit zijn gesteld liggen lager dan de huidige nieuwe woningen.

BIJZONDERHEDEN:
-tuin gesitueerd op het Zuiden;
-betreft een ex-huurwoning;
-vaste notaris (Het Notariaat te Nieuwegein);
-mooie en rustige ligging;
-gebruiksoppervlak wonen begane grond en eerste verdieping 86 m2;
-oppervlakte zolderverdieping (overig inpandig) circa 19 m2;
-totale oppervlakte binnenshuis is 105 m2;
-op loopafstand van winkelcentrum Het Rondl;
-op loopafstand van NS-station;
-exact gemeten;
-energielabel C;
-zie plattegronden voor indeling.

  • 86 m2
  • 135 m2
  • 2

Kenmerken Rademakersgilde 146

Overdracht

Vraagprijs€ 459.000,- k.k.
AanvaardingIn overleg

Oppervlaktes en inhoud

Perceel oppervlakte135 m2
Woonoppervlakte86 m2
Inhoud399 m3

Bouw

SoortEengezinswoning
BouwvormBestaande bouw
Bouwjaar1982
Dak typeLessenaardak
IsolatievormenDakisolatie, Muurisolatie, Dubbelglas
EnergielabelC

Indeling

Aantal verdiepingen3
Aantal kamers3
Aantal slaapkamers2
Aantal badkamers1

Maandlasten

Ligging Rademakersgilde 146

Voorzieningen

Centraal gelegen informatie over de buurt

Aantal inwoners

In de gemeente

49.300

Leeftijd

in percentages van totaal

Huishoudsamenstelling

in percentages van totaal

28%

20% NL

33%

20% NL

39%

20% NL

Vergelijkbaar woningaanbod