Ga naar inhoud

Te koop: woonhuis Pronkmos 16 3994 LP Houten

Verkocht

€ 429.000,- k.k.

In de ruim opgezette en vriendelijke woonwijk Het Mos zeer goed onderhouden en uitstekend afgewerkte EENGEZINSWONING met UITGEBOUWDE WOONKAMER, eigen PARKEERPLAATS en DAKTERRAS!

Deze comfortabele woning met hoog afwerkingsniveau is woonklaar, verhuisdozen uitpakken en je kunt genieten van comfort, mooie ruimtes binnenshuis en de leuke plek waar deze woning is gesitueerd!

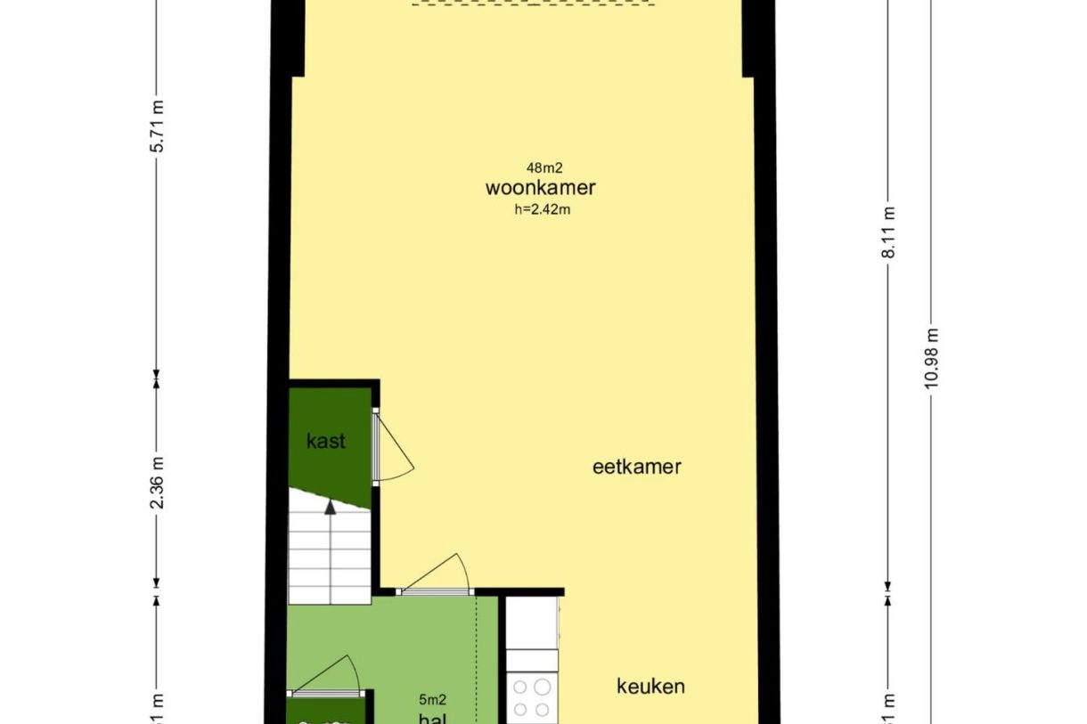
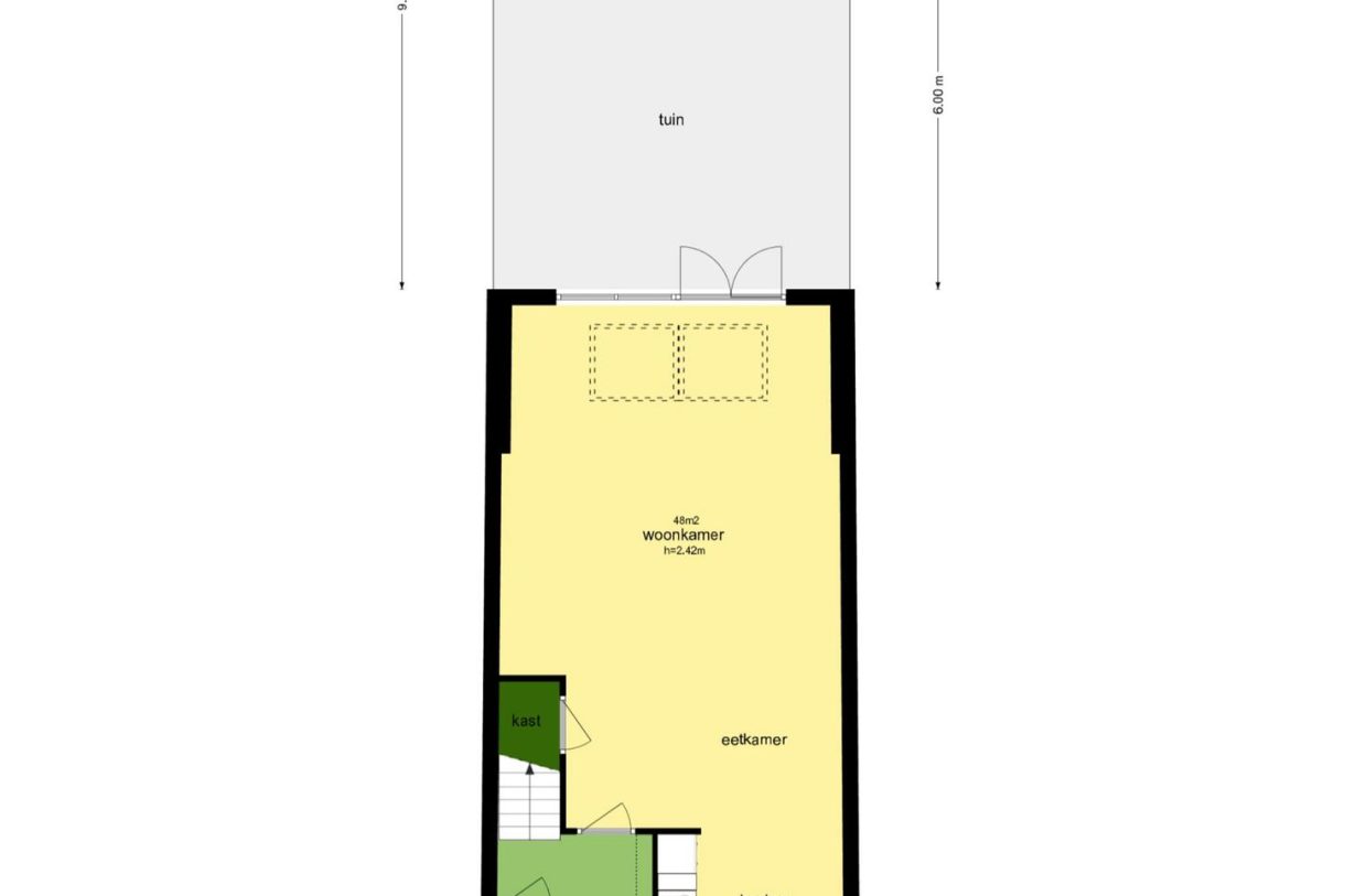
Bij binnenkomst merk je direct dat het een zeer licht woonhuis betreft, de uitbouw heeft een lichtstraat met te openen dakvensters, dubbele tuindeuren en grote raampartijen. Deze zorgen voor een mooie lichtinval op de natuurstenen vloer en de lichte wanden. Licht en ruimte staan bij deze woning dan ook echt centraal. Zo heb je de beschikking over een woonkamer van circa 40m2 met voldoende ruimte voor je zitgedeelte en eettafel. De complete en moderne keuken is aan de voorzijde gesitueerd en afgewerkt met een prachtig hardstenen aanrechtblad. De glad gestuukte wanden en plafonds zorgen voor een zeer fraai totaalplaatje! Ook op de eerste verdieping is aandacht besteed aan een goede afwerking. Zo zijn de wanden van de twee kinderkamers glad gestuukt, is er een mooie eiken vloer gelegd en is de trap gerenoveerd in dezelfde stijl als de vloer. De eerste verdieping telt drie slaapkamers waarbij de slaapkamer aan de voorzijde is uitgerust met een Frans balkon en rolluik als zonwering. De badkamer heeft een ligbad, douche en tweede toilet. De vierde slaapkamer, het dakterras en de wasruimte /berging tref je aan op de tweede verdieping. Ook deze verdieping is met zorg afgewerkt, zo ligt ook hier een eiken vloer en zijn de wanden en plafonds glad gestuukt in combinatie met hoge plinten.

Naast het uitstekende afwerkingsniveau is deze woning ook klaar voor de toekomst met het oog op duurzaamheid. Doordat de woning beschikt over een warmtepomp en 15 zonnepanelen is gasloos wonen in deze woonwijk al geruime tijd realiteit! Zeer comfortabel is dat de gehele woning is voorzien van vloerverwarming in de winter en koeling in de zomermaanden.

Genieten van de zon doe je op het dakterras of in de keurig aangelegde achtertuin. Hier heb je ook toegang tot de stenen berging en de eigen parkeerplaats.

Woonwijk Het Mos is zeer geliefd door de mooie ligging aan de Oosterlaakplas en Rietplas. Hier kun je genieten van water, strandje(s) of een heerlijke wandeling. Voor de kleintjes zijn er diverse speelveldjes en is er aan de Oosterlaakplas een steiger voor de nodige waterpret in de zomermaanden. Bij voldoende vorst bind je hier in de winter je schaatsen onder en schaats je zo de plas op. In de directe omgeving zijn er meerdere basisscholen die per fiets bereikbaar zijn. Ook winkelcentrum Castellum met NS-station zijn binnen enkele fietsminuten te bereiken.

Bouwjaar 2001. Inhoud 427 m3. Woonoppervlak: 132 m 2. Perceel: 136 m2.

INDELING:
BEGANE GROND:
Voortuin, entree/hal, moderne toiletruimte (2017), garderobe, meterkast en trapopgang. Toegang tot de uitgebouwde woonkamer van circa 40 m2 met trapkast en dubbele tuindeuren naar achtertuin met stenen berging en parkeerplaats. Aan de achtergevel is elektra en een wateraansluiting aanwezig.

Aan voorzijde in L-vorm opgestelde keuken die is uitgerust met een Neff vaatwasmachine, spoelbak, vriezer, AEG inductiekookplaat (2020), Siemens combi-oven en Miele koelkast.

EERSTE VERDIEPING:
Overloop, drie slaapkamers van 9, 12 en 13 m2. De slaapkamer aan de voorzijde beschikt over een Frans balkon en een rolluik.

Complete en licht betegelde badkamer met ligbad, douche, tweede toilet en wastafel.

TWEEDE VERDIEPING:
Voorzolder met toegang tot stook- / wasruimte met opstelplaats voor de wasapparatuur, omvormer zonnepanelen, warmte-terug-win-installatie en de in 2019 nieuw geplaatste warmtepompinstallatie.

Toegang tot de slaapkamer van 17 m2 met deur naar dakterras van 17 m2.

BIJZONDERHEDEN:
-Woonkamer 2.5m uitgebouwd;
-Mooie lichtstraat met te openen Velux dakvensters;
-Keuken voorzien van alle gemakken;
-Algehele afwerking is uitstekend;
-Parkeerplaats op eigen terrein;
-Dakterras van 17 m2;
-Totaal 4 slaapkamers;
-Eerste en tweede verdieping v.v. eiken vloeren;
-Trap naar 2e verdieping gerenoveerd;
-Toiletruimte gemoderniseerd in 2017;
-Warmtepompinstallatie in 2019 vervangen (huur);
-Gehele woning v.v. vloerverwarming/koeling;
-15 zonnepanelen geplaatst in 2018;
-Leuke ligging nabij scholen, winkels, OV en recreatieplas;
-Bekijk de digitale plattegronden voor de afmetingen;
-De video geeft een mooie impressie van de woning.

  • 132 m2
  • 136 m2
  • 4

Kenmerken Pronkmos 16

Overdracht

Vraagprijs€ 429.000,- k.k.

Oppervlaktes en inhoud

Perceel oppervlakte136 m2
Woonoppervlakte132 m2
Inhoud427 m3

Bouw

SoortEengezinswoning
BouwvormBestaande bouw
Bouwjaar2001
Dak typePlat dak
IsolatievormenVolledig geïsoleerd
EnergielabelA

Indeling

Aantal verdiepingen3
Aantal kamers5
Aantal slaapkamers4
Aantal badkamers1

Maandlasten

Ligging Pronkmos 16

Voorzieningen

Centraal gelegen informatie over de buurt

Aantal inwoners

In de gemeente

49.300

Leeftijd

in percentages van totaal

Huishoudsamenstelling

in percentages van totaal

20%

20% NL

27%

20% NL

53%

20% NL

Vergelijkbaar woningaanbod