Ga naar inhoud

Te koop: woonhuis Prinses Ireneweg 7 3991 BE Houten

Verkocht

€ 369.000,- k.k.

Wil je graag wonen in het ‘Oude Dorp’ van Houten en zoek je een woning die je geheel naar je eigen hand kunt zetten, kom dan deze ruime eengezinswoning met vier slaapkamers, dakkapel en zonnige tuin bekijken, wij laten je graag de vele mogelijkheden zien die deze woning je te bieden heeft!

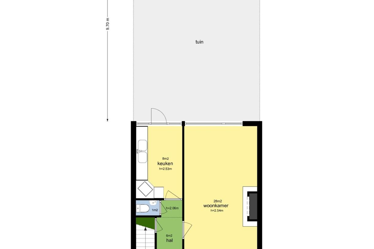
Naast de zonnige voor- en achtertuin heeft deze woning een mooie indeling. De woning heeft binnenshuis een breedte van ruim 6 meter en hierdoor komen alle ruimtes goed tot zijn recht. Je bereikt de woning middels de ruime hal waar je toegang hebt tot de doorzon woonkamer. De woonkamer heeft veel lichtinval door de grote raampartijen wat zorgt voor een prettig wooncomfort. De keuken, die bij de woonkamer te betrekken is, bevindt zich direct naast de woonkamer en heeft een tuindeur naar de achtertuin. Deze is gelegen op het oosten en je geniet hier al vroeg van de ochtendzon. Tevens tref je in de achtertuin een berging en een achterom aan. De voortuin is zeer geschikt om een leuk bankje te plaatsen zodat je hier heerlijk kunt buiten zitten.

Op de eerste verdieping bevinden zich drie mooie slaapkamers waarvan twee zijn voorzien van vaste kasten. Ook op de overloop is vaste kastruimte aanwezig. De licht betegelde badkamer is uitgerust met een wastafel, douchegelegenheid en een w.c..

De grote zolderverdieping is voorzien van een voorzolder met opstelplaats voor de c.v.-ketel, dakramen en je hebt hier toegang tot de ruime slaapkamer met dakkapel en wastafel.

De woning dient aan de binnenzijde gemoderniseerd te worden, het grote voordeel hiervan is dat je direct kan kiezen voor een keuken, badkamer en afwerking zoals jij die wilt!

De ligging van de woning is uitstekend, centraal in Houten nabij het ‘oude dorp’ met gezellige restaurants en terrassen maar ook op loopafstand van winkelcentrum Het Rond met theater, bioscoop, treinstation en busstation. De plek bij uitstek die garant zal staan voor vele jaren woonplezier!

Bouwjaar 1968. Inhoud 409 m3. Perceel 148 m². Woonoppervlak: 121 m².

INDELING:
BEGANE GROND: Zonnige voortuin, ruime entree/hal met meterkast, trapopgang, trapkast en toiletruimte met toilet en fonteintje, doorzon woonkamer van 28 m2, afgesloten keuken met tuindeur naar zonnige tuin op het oosten met stenen berging en de achterom.

Het is mogelijk om de keuken bij de woonkamer te betrekken.

EERSTE VERDIEPING: Overloop met toegang tot drie slaapkamers van 8 m2, 11 m2 en 13 m2 waarbij de twee grote slaapkamers zijn voorzien van vaste kasten. Ook op de overloop is een vaste kast aanwezig.

De badkamer is uitgerust met een douche, tweede w.c., wastafel en een radiator. De badkamer kan vergroot worden door een gedeelte van de slaapkamer, aan de voorzijde van de woning, bij deze badkamer te betrekken.

TWEEDE VERDIEPING: Voorzolder met twee dakvensters, opstelplaats c.v.-ketel en de mooie slaapkamer van 17 m2 met dakkapel aan de achterzijde. Ook deze verdieping kan worden vergroot door het plaatsen van grotere dakkapellen.

BIJZONDERHEDEN:
-Op korte afstand van het gezellige oude dorp van Houten;
-Winkelcentrum Het Rond met NS-station op loopafstand;
-Woning dient gemoderniseerd te worden;
-Wonen in een rustige en geliefde woonstraat;
-Ouderdomsclausule van toepassing;
-Zelf niet bewoond clausule van toepassing;
-Verwarming en warm water door middel van c.v.-gas;
-Zonnige tuin op het oosten;
-Woning grotendeels voorzien van isolatieglas;
-Woning met mogelijkheden en vele jaren woonplezier;
-Exact gemeten;
-Bekijk voor een indruk de video en plattegronden.

  • 121 m2
  • 148 m2
  • 4

Kenmerken Prinses Ireneweg 7

Overdracht

Vraagprijs€ 369.000,- k.k.

Oppervlaktes en inhoud

Perceel oppervlakte148 m2
Woonoppervlakte121 m2
Inhoud409 m3

Bouw

SoortEengezinswoning
BouwvormBestaande bouw
Bouwjaar1968
Dak typeZadeldak
IsolatievormenDubbelglas
EnergielabelE

Indeling

Aantal verdiepingen3
Aantal kamers5
Aantal slaapkamers4
Aantal badkamers1

Maandlasten

Ligging Prinses Ireneweg 7

Voorzieningen

Centraal gelegen informatie over de buurt

Aantal inwoners

In de gemeente

49.300

Vergelijkbaar woningaanbod