€ 795.000,- k.k.
Prachtig gelegen HOEK HERENHUIS met een woonoppervlakte van maar liefst 210 m2!
Dit statige woonhuis is gesitueerd op een bijzonder fraaie locatie in woonwijk Het Water aan brede singel, groot speelveld en biedt vanuit vrijwel iedere ruimte een prachtig uitzicht in en over de woonwijk.
Niet alleen de ruimte binnenshuis is riant, ook heeft deze woning diverse buitenruimtes waar je op ieder moment van de dag kunt genieten van de zon! Zo beschikt de woning over een zonnige tuin op het Westen, een terras aan de zijkant van de woning en zijn er meerdere kamers uitgerust met Franse balkons!
Dit herenhuis heeft maar liefst 4 woonlagen. De begane grond beschikt over een werkkamer, een inpandige berging en een ruime woonkeuken van 31 m2 met zij-uitbouw. Deze zij-uitbouw heeft veel lichtinval door de grote raampartijen en voldoende ruimte voor een grote eettafel. Vanuit deze zij-uitbouw kijk je dan ook fantastisch weg de woonwijk in. De keuken is compleet en voorzien van inbouwapparatuur. Als vloerafwerking is hier gekozen voor een fraaie Belgisch hardstenen vloer die in de hal en woonkeuken is voorzien van vloerverwarming!
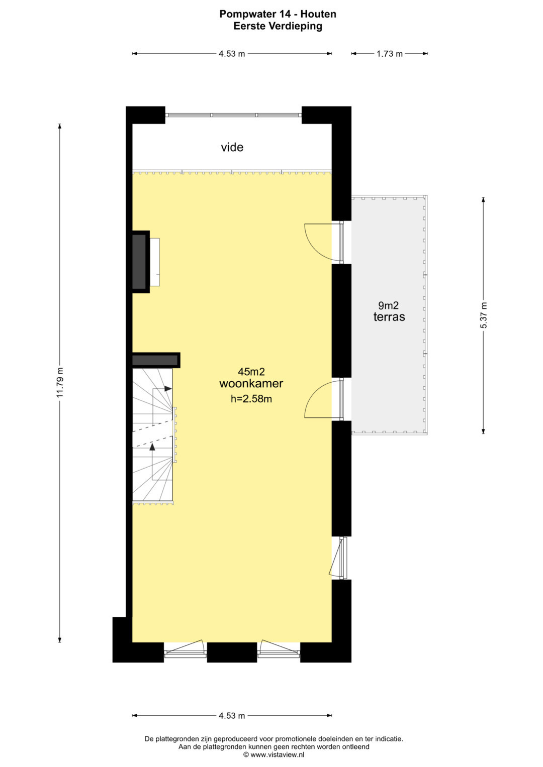
De woonverdieping is maar liefst 45 m2 groot en beschikt over een mooi terras. Speels detail is de vide die, in combinatie met de woonkeuken, zorgt voor een ruimtelijk effect. Wil je toch even naar buiten en genieten van de zon, dan kun je gebruik maken van het terras dat beschikt over een mooi en vrij uitzicht. Hier geniet je van de vroege ochtend – en avondzon! Deze verdieping is afgewerkt met een mooie massief eiken vloer en geniet je in de wintermaanden van de sfeervolle gashaard!
De derde woonlaag is de verdieping met twee riante slaapkamers van 15 en 18 m2 en de zeer royale badkamer. Deze slaapkamers zijn uitgerust met Franse balkons. De badkamer is voorzien van elektrische vloerverwarming, een inloopdouche, ligbad, frans balkon en heeft een dubbele wastafel in modern meubel. Vanaf de overloop met trappenhuis bereik je ook het separate toilet die, net als op de begane grond is voorzien van een moderne tint.
Tot slot de vierde woonlaag, nog meer ruimte! De grote overloop biedt toegang tot nog eens twee riante slaapkamers van 12 en 15 m2. Deze kamers zijn zeer geschikt voor de thuiswonende tieners die je hun eigen mooie kamer gunt! Je geniet hier dan ook van een prachtig uitzicht! Over de gehele lengte van deze overloop is een grote vaste kastenwand met schuifdeuren geplaatst met vele opbergmogelijkheden. Tevens bevindt zich op deze verdieping de wasruimte en de opstelplaats voor de c.v.-installatie. Het realiseren van een bergzolder of een tweede badkamer behoort hier tot de mogelijkheden.
Woonwijk Het Water is zeer geliefd door haar diverse bouwstijlen, fraaie en kinderrijke ligging nabij park Schoneveld en basisscholen. Ook winkelcentrum Castellum met haar winkels voor de dagelijkse boodschappen en het NS-station liggen binnen handbereik! Kortom een mooie woning op een fantastische locatie!
INDELING:
BEGANE GROND: centraal op de begane grond is de ruime hal gesitueerd die je toegang biedt tot de volgende vertrekken: de inpandige berging met waterontharder, de werkkamer van 7 m2, trapopgang met trapkast, moderne toiletruimte met wandcloset en fontein en de ruime woonkeuken van 31 m2.
De keuken is voorzien van de volgende inbouwapparatuur: inductiekookplaat met wokpit, recirculatiekap, Quooker, vaatwasmachine, magnetron, oven, koelkast en vriezer. Naast deze inbouwapparatuur heeft de keuken veel kastruimte en een composiet aanrechtblad.
Toegang tot de keurige tuin met voldoende zon en gunstige ligging op het westen via de dubbele tuindeuren.
EERSTE VERDIEPING: grote woonverdieping van maar liefst 45 m2 met vide en toegang tot het terras aan zijkant van de woning. Op dit terras geniet je van de ochtend en avondzon. Het balkon aan de zijkant is gesitueerd op het Noordoosten (vroege ochtendzon en avondzon) en biedt mooi zicht over speelveld en singel. Deze verdieping is afgewerkt met een rustieke en massieve eiken vloer!
TWEEDE VERDIEPING: overloop, separaat toilet met wandcloset, ruime badkamer met elektrische vloerverwarming, inloopdouche met regen- en handdouche, ligbad, wastafelmeubel met twee wastafels en frans balkon. Twee slaapkamers van 18 en 15 m2, beiden voorzien van Franse balkons.
DERDE VERDIEPING: grote voorzolder met opstelplaats wasapparatuur, c.v.-installatie en opbergmogelijkheden in zeer ruime kastenwand. Ook deze verdieping heeft twee grote slaapkamers namelijk van 13 en 15 m2.
De slaapkamer aan de achterzijde is voorzien van dakramen. Het realiseren van een extra badkamer behoort hier tot de mogelijkheden.
Bijzonderheden:
-Prachtig gelegen herenhuis;
-Woonkeuken met zij-uitbouw;
-Hal en woonkeuken voorzien van vloerverwarming;
-Werkkamer op begane grond; vier ruime slaapkamers;
-Ruime living van 45 m2 met speelse vide;
-Gehele woning heeft Franse balkons;
-Complete badkamer met o.a. ligbad, douche en vloerverwarming;
-Nieuw bouwbesluit, plafondhoogtes van 2.60m;
-Genieten in tuin of op het terras;
-Voorzien van waterontharder;
-14 zonnepanelen;
-Gunstig gelegen ten opzichte van winkels en NS-station;
-Kinderrijke woonomgeving;
-Exact gemeten: woonoppervlak 209.6 m2
-Bekijk de 360 gradenfoto’s of plattegronden voor de indeling.
- 210 m2
- 122 m2
- 5
Kenmerken Pompwater 14
Overdracht
| Vraagprijs | € 795.000,- k.k. |
|---|---|
| Aanvaarding | In overleg |
Oppervlaktes en inhoud
| Perceel oppervlakte | 122 m2 |
|---|---|
| Woonoppervlakte | 210 m2 |
| Inhoud | 928 m3 |
Bouw
| Soort | Herenhuis |
|---|---|
| Bouwvorm | Bestaande bouw |
| Bouwjaar | 2007 |
| Dak type | Dwarskap |
| Isolatievormen | Volledig geïsoleerd |
| Energielabel | A |
Indeling
| Aantal verdiepingen | 4 |
|---|---|
| Aantal kamers | 7 |
| Aantal slaapkamers | 5 |
| Aantal badkamers | 1 |
Maandlasten
Ligging Pompwater 14
Voorzieningen
Centraal gelegen informatie over de buurt
Aantal inwoners
In de gemeente
49.300