Ga naar inhoud

Te koop: woonhuis Muntslag 28 3991 WT Houten

Verkocht

€ 475.000,- k.k.

In woonwijk DE SLAG bieden wij je te koop aan deze zeer netjes afgewerkte en RUIME HOEKWONING die recent is gemoderniseerd en beschikt over een zonnige tuin op het Zuidwesten!

De woning heeft een ruimtelijke indeling en is voor jonge gezinnen zeer geschikt door de mooie ruimtes binnenshuis! De brede en vanuit de bouw standaard uitgebouwde woonkamer geeft je een ruimtelijk gevoel. De woning is 5.77 meter breed en hierdoor een slag groter dan gemiddelde eengezinswoningen, deze breedte komt terug op iedere verdieping en hierdoor profiteer je overal van mooie ruimtes binnenshuis. De schuifpui en tuindeur zorgen voor veel lichtinval en direct contact met de in 2018 opnieuw aangelegde achtertuin. Een populair tv-programma heeft de huidige bewoners hierbij geholpen en het resultaat mag er dan ook zeker zijn. Tot in de late uurtjes geniet je hier van groen en zon!
De vernieuwde keuken en toiletruimte zijn eveneens vernieuwd waarbij de ‘finishing touch’ wordt verkregen door het stucwerk en de nieuw gelegde vloeren. De moderne keuken is uitgerust met alle denkbare inbouwapparatuur en biedt je vele jaren kookplezier. Vanuit het keukenraam heb je leuk zicht op het tegenover gelegen speelveld en plantsoen waar de kleintjes volop buiten kunnen spelen!

Op de eerste verdieping tref je drie mooie slaapkamers aan en de nieuw geplaatste badkamer. Ook deze badkamer ademt luxe en is voorzien van een mooie sunshower met infrarood, regendouche, handdouche, wastafelmeubel met dubbele kranen, spiegel met led-verlichting, modern wandcloset en strak tegelwerk. De ruime overloop brengt je niet alleen naar de drie slaapkamers en badkamer maar ook naar de tweede verdieping via de vaste trap.

Je treft op deze tweede verdieping een zee aan ruimte aan. Het behoort dan ook tot de mogelijkheden om een dakkapel te plaatsen of een indeling te realiseren voor twee slaapkamers. Ook tref je hier de plek aan voor de wasapparatuur, c.v.-ketel, mechanische ventilatiebox en bergruimte achter knieschotten. Geen zorgen over het vervangen van de c.v.-ketel, dit is in 2018 door de huidige bewoners al gedaan!

Deze ruime en vriendelijk gelegen hoekwoning is zeer netjes afgewerkt en ligt zeer gunstig ten opzichte van alle denkbare voorzieningen. Met de auto ben je binnen enkele minuten op de rondweg richting de A27, fiets je binnendoor naar het oude dorp of pak je de trein op het NS-station naar Utrecht stad. Ook met de fiets is Utrecht goed aan te rijden. In Houten kun je naar de bioscoop, het theater en zijn er meerdere winkelcentra met ruime parkeervoorzieningen. Het gezellige oude dorp heeft leuke restaurants met diverse terrassen. Door al deze voorzieningen is Houten dan ook zeer geliefd onder jonge gezinnen!

Kom jij binnenkort kijken bij deze mooie hoekwoning die echt woonklaar te noemen is? Wij laten je graag de woning zien tijdens een bezichtiging!

INDELING:

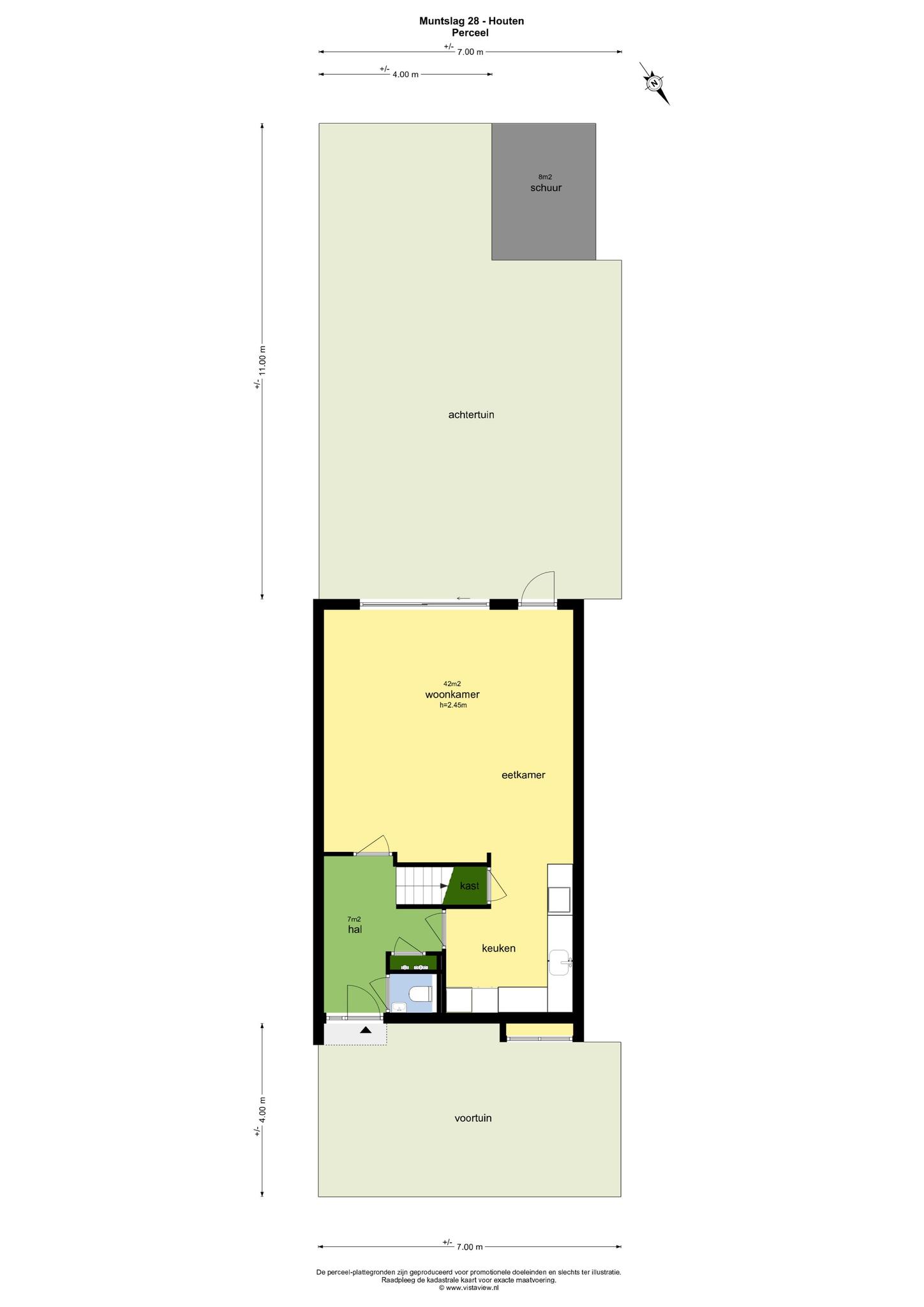
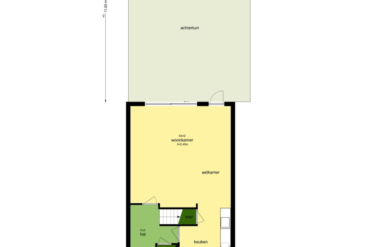
BEGANE GROND: voortuin, entree/hal, luxe toiletruimte met fonteintje, meterkast, garderobe, deur naar keuken met trapkast en ruime woonkamer van 42 m2.

De aan de voorzijde gesitueerde keuken is voorzien van de volgende inbouwapparatuur: combi-oven, koel- en vriescombinatie, spoelbak, Franken direct kokend water kraan, vaatwasmachine, inductiekookplaat, rvs-afzuigschouw en veel kastruimte.

Tuingerichte woonkamer van 5.60m x 5.77m met schuifpui en tuindeur naar tuin op Zuidwesten met fraai straatwerk, gazon, borders, zonnescherm en een stenen berging met een achterom.

EERSTE VERDIEPING: ruime en lichte overloop met toegang tot drie slaapkamers van 12 m2, 12 m2 en 9 m2.

Zeer fraaie badkamer van 7 m2 die is uitgerust met een wastafelmeubel met lades en dubbele kranen, spiegel met led-verlichting, modern wandcloset, ruime inloopdouche met glazen wand, sunshower, regendouche en een handdouche!

TWEEDE VERDIEPING: zeer ruime zolderverdieping van 25 m2 met opstelplaats voor de wasapparatuur, bergruimte achter knieschotten, c.v.-ketel (Atag 2018), mechanische ventilatiebox (Itho Daalderop 2018) en een Velux dakvenster. Het plaatsen van een dakkapel of realiseren een of twee slaapkamers behoort hier tot de mogelijkheden.

BIJZONDERHEDEN:
-Ideale gezinswoning op kinderrijke locatie;
-Tuin gelegen op het Zuidwesten;
-Recent gemoderniseerd, woning is woonklaar;
-Keuken, badkamer, toiletruimte vernieuwd in 2018;
-Achtertuin vernieuwd in 2018, voortuin vernieuwd 2019;
-C.V.-ketel Atag vernieuwd in 2018;
-Vloeren begane grond 2020, vloeren verdieping 2018;
-Buitenschilderwerk 2020;
-Zonnescherm geplaatst in 2018;
-Eerste verdieping achterzijde beschikt over screens;
-Gehele woning voorzien van horren;
-Nabij uitvalswegen;
-Op korte afstand van oude dorp en NS-stations;
-Bekijk de plattegronden voor de indeling;
-Laat je meenemen voor een tour door de woning door de video te bekijken op onze website of op Funda.
-Exact gemeten.

  • 128 m2
  • 175 m2
  • 4

Kenmerken Muntslag 28

Overdracht

Vraagprijs€ 475.000,- k.k.

Oppervlaktes en inhoud

Perceel oppervlakte175 m2
Woonoppervlakte128 m2
Inhoud447 m3

Bouw

SoortEengezinswoning
BouwvormBestaande bouw
Bouwjaar1990
Dak typeZadeldak
IsolatievormenVolledig geïsoleerd
EnergielabelB

Indeling

Aantal verdiepingen3
Aantal kamers5
Aantal slaapkamers4
Aantal badkamers1

Maandlasten

Ligging Muntslag 28

Voorzieningen

Centraal gelegen informatie over de buurt

Aantal inwoners

In de gemeente

49.300

Leeftijd

in percentages van totaal

Huishoudsamenstelling

in percentages van totaal

24%

20% NL

29%

20% NL

48%

20% NL

Vergelijkbaar woningaanbod