Ga naar inhoud

Te koop: woonhuis Mijnspoor 35 3994 VR Houten

Aangekocht

€ 375.000,- k.k.

In de wijk Het Spoor gelegen sfeervolle tussenwoning met voor- en achtertuin. Karakteristieke jaren ’30 bouwstijl in een nieuw moderne jas en tevens intern volledig gemoderniseerd en afgewerkt in moderne kleuren en materialen. Instapklare woning met 4 slaapkamers, moderne keuken en badkamer, wanden en plafonds gestuukt, stopcontacten verlaagd, tuin opnieuw aangelegd en een fraaie pergola.

De ligging is in een gezellig hofje in de fraai opgezette woonwijk “Het Spoor”. Voor kinderen genoeg te beleven op een van de speelveldjes rondom het hofje.
Scholen, recreatieplas De Rietplas met haar strandjes, uitvalswegen, NS-station en winkelcentrum Castellum, maar ook het Rond en Oude Dorp zijn op loop-/fietsafstand aanwezig!

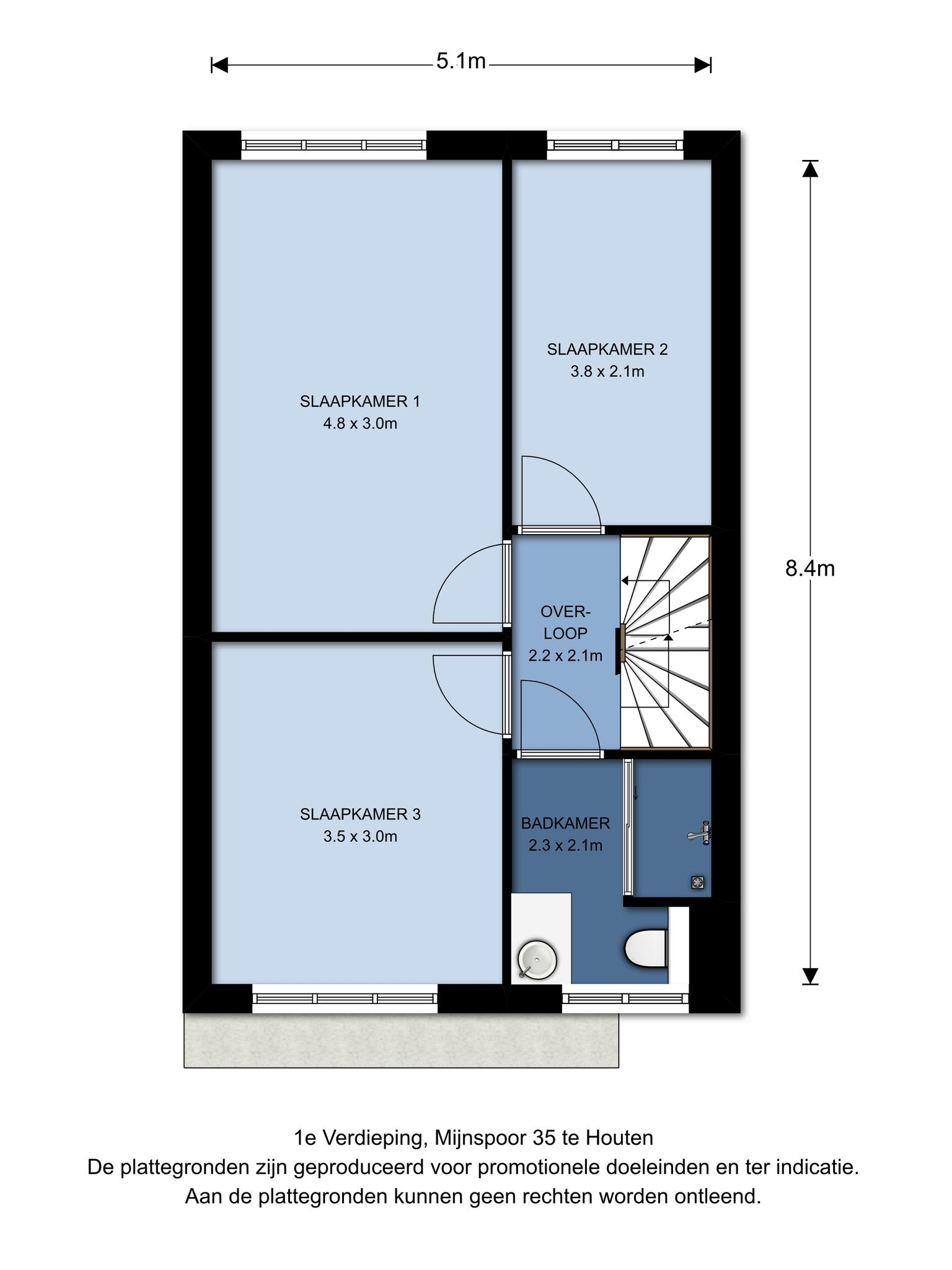
Indeling:
Begane grond: voortuin met buitenkraan, entree, hal, zwevend toilet met fonteintje, trapopgang, brede tuingerichte woonkamer met sfeervolle pergola, moderne L-vormige keuken voorzien van inductie kookplaat, vaatwasser, koelkast met vriesvak, circulatie kap allen met 5 jaar garantie. Achtertuin met pergola, berging en achterom.

1e Verdieping: overloop, moderne badkamer met voorzien van douche, zwevend toilet en wastafel meubel, 3 ruime slaapkamers.

2e Verdieping: overloop met dakvenster, aansluiting voor wasmachine en droger, slaapkamer over de volle lengte van de woning met dakvenster aan de achterzijde.

Bijzonderheden:
– Bouwjaar 1999;
– Woonoppervlakte conform NEN 2580 meetrapport 116 m2;
– Verwarming door middel van stadsverwarming;
– Moderne keuken voorzien van inbouwapparatuur;
– Moderne badkamer;
– Riante gezinswoning met 4 slaapkamers;
– Schilderwerk buitenzijde zomer 2019;
– Verdiepingen zijn voorzien van laminaatvloeren;
– Oplevering in overleg.
– Van deze woning is een unieke woningwebsite beschikbaar. Download de brochure voor de link naar de website waar
je alle gegevens van de woning kan vinden.

  • 116 m2
  • 128 m2
  • 4

Kenmerken Mijnspoor 35

Overdracht

Vraagprijs€ 375.000,- k.k.

Oppervlaktes en inhoud

Perceel oppervlakte128 m2
Woonoppervlakte116 m2
Inhoud406 m3

Bouw

SoortEengezinswoning
BouwvormBestaande bouw
Bouwjaar1999
Dak typeZadeldak
IsolatievormenVolledig geïsoleerd

Indeling

Aantal verdiepingen3
Aantal kamers5
Aantal slaapkamers4
Aantal badkamers1

Maandlasten

Ligging Mijnspoor 35

Voorzieningen

Centraal gelegen informatie over de buurt

Aantal inwoners

In de gemeente

49.300

Leeftijd

in percentages van totaal

Huishoudsamenstelling

in percentages van totaal

31%

20% NL

21%

20% NL

48%

20% NL

Vergelijkbaar woningaanbod