€ 585.000,- k.k.
Dit is het huis voor jou! Wij weten het zeker; modern afgewerkt, een uitstekende ligging met leuke speelplek voor de kleintjes direct voor de deur, twee eigen parkeerplaatsen, een ruime achtertuin en mooie ruimtes binnenshuis! Ben je op zoek naar een woning die je zonder grote werkzaamheden direct wilt betrekken, wij maken graag een afspraak met je voor een bezichtiging!
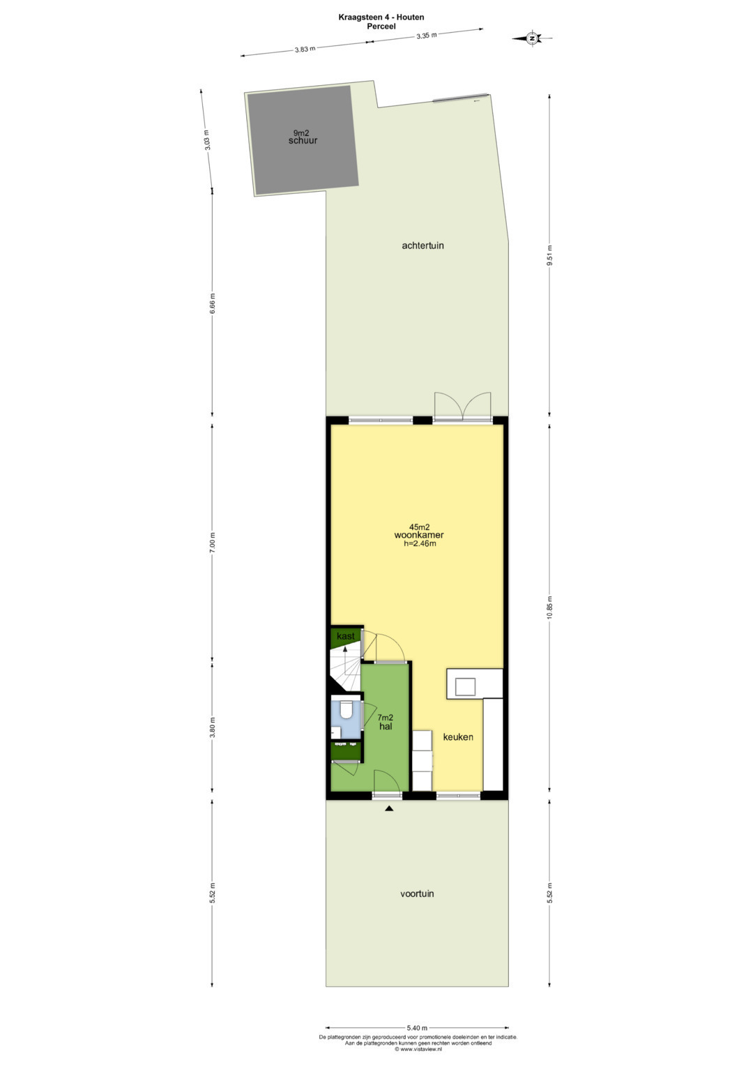
De woning is door de huidige eigenaren goed onderhanden genomen toen zij hun intrek namen. Er is meteen een mooie uitbouw gerealiseerd en er is een luxe keuken geplaatst die is voorzien van alle gemakken. Ook de toiletruimte is vernieuwd en is er een eigentijdse deur geplaatst vanuit de hal naar de woonkamer. Niet alleen de keuken bied je veel comfort, door de aanwezigheid van vloerverwarming geniet je in de wintermaanden van een aangenaam comfort. De grote raampartijen en de dubbele tuindeuren zorgen voor mooie zichtlijnen de tuin in! Deze achtertuin is extra diep doordat de berging op een zeer gunstige manier op het perceel is gepositioneerd, hierdoor blijft er veel ruimte over om in de zomermaanden heerlijk te kunnen genieten. Aan de achtergevel is een elektrisch zonnescherm geplaatst. De begane grond is afgewerkt met glad stucwerk in combinatie met een fraaie pvc-vloer die zorgt voor een warme en gezellige sfeer.
Op de eerste verdieping bevinden zich twee ruime slaapkamers en de badkamer. Deze badkamer is eveneens vernieuwd en voorzien van licht en strak tegelwerk, een douche met glazen wand, wastafelmeubel met dubbele kranen en een ligbad. Het dakvenster zorgt voor een mooie lichtinval en verwarmen doe je middels de designradiator. De slaapkamer aan de voorzijde is uitgerust met elektrische rolluiken en een vaste kast.
Door de twee dakkapellen op de tweede verdieping zijn er twee mooie slaapkamers gerealiseerd. De voorzolder profiteert ook van deze dakkapellen waardoor deze ook geniet van een mooie lichtinval. Hier is een leuke werkplek gerealiseerd en tref je de opstelplaats voor wasmachine en droger aan. Extra bergruimte bevindt zich op de zolder, deze is toegankelijk via de vlizotrap en biedt net dat beetje extra opbergruimte wat je bij andere woningen te kort komt.
Nooit meer zoeken naar een parkeerplaats voor je auto, deze parkeer je gewoon direct voor de woning zodat je gelijk je woning kunt betreden!
Deze moderne woning heeft alle voorzieningen in de directe omgeving zoals basisscholen (De Stek bevindt zich op enkele minuten fietsafstand), kinderdagverblijf, uitvalswegen naar bijvoorbeeld de A-27 en winkelcentrum Castellum met NS-station en de vele winkels voor de dagelijkse boodschappen. De woning is goed geïsoleerd, aangesloten op de stadsverwarming en beschikt over een glasvezelaansluiting.
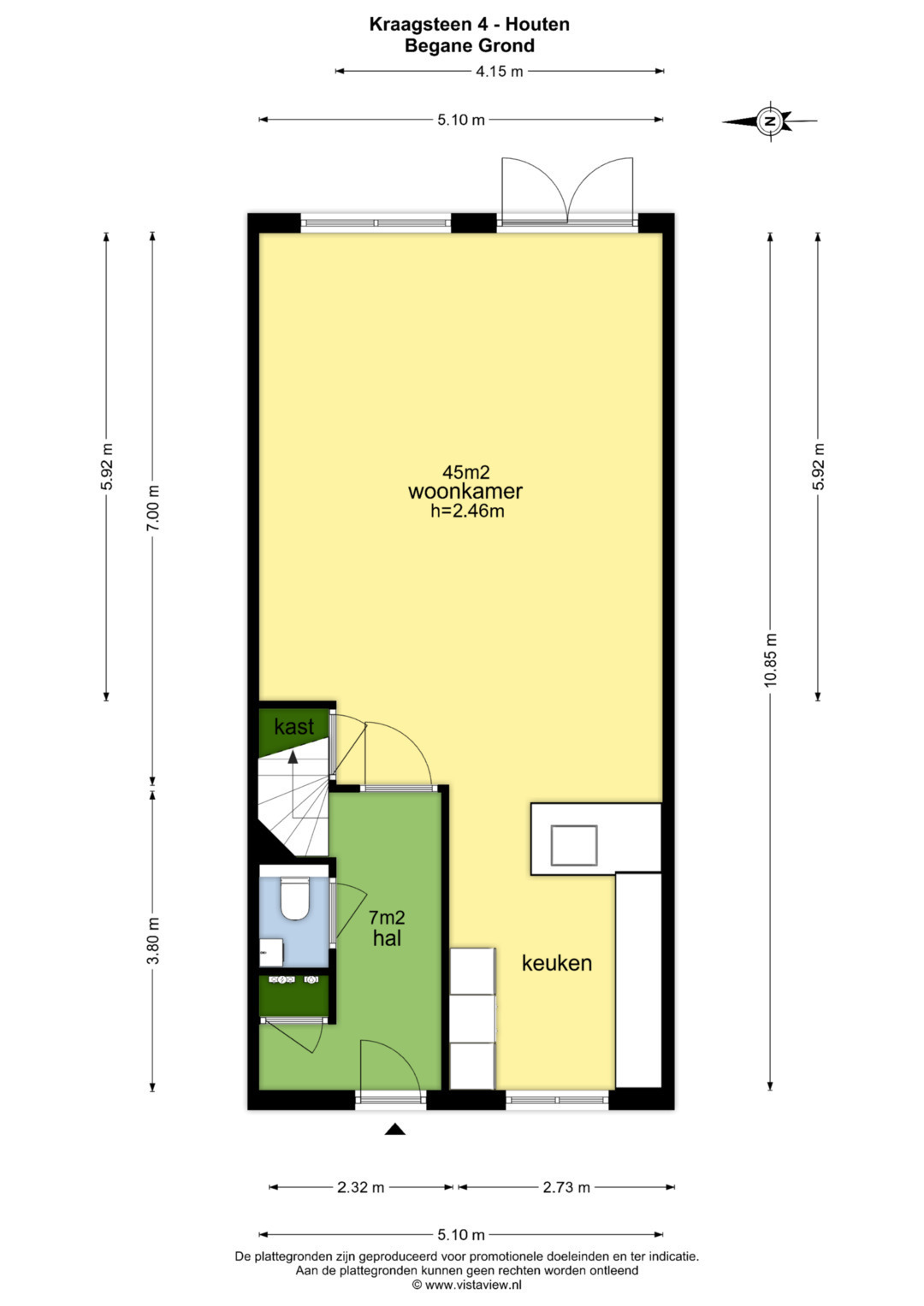
INDELING:
BEGANE GROND: Entree/hal, garderobe, meterkast v.v. glasvezelaansluiting, moderne toiletruimte met wandcloset en fontein met handig kastje, trapopgang naar de eerste verdieping.
Uitgebouwde en tuingerichte woonkamer met trapkast met pomp vloerverwarming, mooie plek voor de eettafel bij de keuken, dubbele tuindeuren naar de achtertuin met houten berging en de achterom.
De moderne keuken is aan de voorzijde van de woning gesitueerd en voorzien van de volgende inbouwapparatuur: Bora inductiekookplaat, Quooker en Siemens vaatwasmachine, -combi-oven, -koelkast, -vriezer en veel opbergruimte in de kastruimte.
EERSTE VERDIEPING: overloop, twee slaapkamers waarbij de slaapkamer aan de voorzijde beschikt over een vaste kast en elektrische rolluiken. Badkamer met dakraam, ligbad, inloopdouche, wandcloset, wastafelmeubel met dubbele kraan en designradiator.
TWEEDE VERDIEPING: voorzolder met opstelplaats wasapparatuur, werkplek, vlizotrap naar bergzolder en toegang tot de twee slaapkamers.
Beide slaapkamers zijn voorzien van een dakkapel, ook de voorzolder profiteert van de breedte van deze dakkapellen met een uitstekende lichtinval. Er zijn vier afzonderlijke elektrische rolluiken op de dakkapellen.
BIJZONDERHEDEN:
-Uitbouw woonkamer gerealiseerd in 2019;
-Keuken, toilet en badkamer vernieuwd in 2019;
-Begane grond v.v. vloerverwarming (hoofdverwarming);
-Wanden en plafonds begane grond v.v. glad stucwerk;
-Binnendeuren op de begane grond zijn vernieuwd;
-Parkeren op eigen terrein voor de woning (2 auto’s);
-Ligging aan kindvriendelijk hofje;
-Elektrische zonnescherm aan achtergevel;
-Elektrische rolluiken aanwezig op eerste en tweede verdieping;
-Vier slaapkamers;
-Diepe achtertuin met een zonnige ligging;
-Kinderrijke woonomgeving;
-Op korte afstand van groot park Schoneveld;
-Gunstige ligging t.o.v. scholen en uitvalswegen;
-Verwarming en warm water middels stadsverwarming;
-Exact gemeten;
-Voor de indeling, bekijk ook de plattegronden en video!
- 121 m2
- 147 m2
- 4
Kenmerken Kraagsteen 4
Overdracht
| Vraagprijs | € 585.000,- k.k. |
|---|---|
| Aanvaarding | In overleg |
Oppervlaktes en inhoud
| Perceel oppervlakte | 147 m2 |
|---|---|
| Woonoppervlakte | 121 m2 |
| Inhoud | 423 m3 |
Bouw
| Soort | Eengezinswoning |
|---|---|
| Bouwvorm | Bestaande bouw |
| Bouwjaar | 2004 |
| Dak type | Lessenaardak |
| Isolatievormen | Volledig geïsoleerd |
| Energielabel | A |
Indeling
| Aantal verdiepingen | 4 |
|---|---|
| Aantal kamers | 5 |
| Aantal slaapkamers | 4 |
| Aantal badkamers | 1 |
Maandlasten
Ligging Kraagsteen 4
Voorzieningen
Centraal gelegen informatie over de buurt
Aantal inwoners
In de gemeente
49.300