Ga naar inhoud

Te koop: woonhuis IJsselpolder 17 3991 HS Houten

Verkocht

€ 695.000,- k.k.

Unieke kans!

Op een fantastische locatie in woonwijk De Polder, direct aan waterpartij met vrij en open uitzicht gelegen, ROYAAL UITGEBOUWDE HOEKWONING op een mooi perceel van 261 m2 met zonnige tuin, vrij gelegen terras en recent geplaatste veranda!

Deze fraaie ‘singelvilla’ is zowel aan de achterzijde en zijkant mooi uitgebouwd met als resultaat een prachtig ruime woonkamer met veel lichtinval door onder andere de grote raampartijen en dubbele tuindeuren. De strakke vloertegels met vloerverwarming en de glad gestuukte wanden zorgen voor een moderne uitstraling! Door de breedte van het perceel geniet je ook van een extra ruime achtertuin en terras aan de voorzijde van de woning. In de avonduurtjes is dit terras een heerlijke plek om te genieten van de ondergaande zon en het leuke zicht op het water! In de achtertuin is een mooie veranda geplaatst en beschikt de achtergevel over een groot formaat zonnescherm. Extra opbergruimte is aanwezig in de stenen berging die zich naast de veranda bevindt. Parkeren kan direct bij de woning aan de achterzijde of op eigen terrein achter de dubbele poortdeuren, ideaal voor als je bijvoorbeeld beschikt over een elektrische auto.

Je bereikt de woning via de lichte en ruime hal waar je de garderobe aantreft en de moderne toiletruimte. De woonkamer is acht meter breed en heeft een oppervlakte van ruim 50 m2. Aan de voorzijde is de keuken gesitueerd die is uitgerust met een kookeiland en diverse inbouwapparatuur. Ook vanuit de keuken is er mooi uitzicht op het terras en waterpartij; het terras bereik je vanuit de keuken via de dubbele tuindeuren. De platte daken van de uitbouw zijn zeer geschikt voor het plaatsen van zonnepanelen.

De ruime overloop op de eerste verdieping biedt toegang tot de drie slaapkamers, één met vaste kastruimte, een separate toiletruimte en de licht betegelde badkamer met hoekligbad douche en wastafelmeubel. De slaapkamer aan de voorzijde heeft een frans balkon waardoor je in de late avonduurtjes ook kunt genieten van een heerlijke zomeravond. De ruime overloop brengt je ook naar de tweede verdieping, hier is de praktische wasruimte en de vierde slaapkamer gesitueerd. Extra bergruimte is aanwezig boven de overloop.

Woonwijk De Polder maakt deel uit van één van de mooiste woonwijken van Houten; Waterpark. Mooi gelegen in de Hoonpolder en dichtbij het Amsterdam-Rijnkanaal. De woonwijk is samengesteld uit een aantal eilanden die met bruggen en wegen met elkaar verbonden zijn. Ruim opgezet en kindvriendelijk. Voorzieningen zijn dan ook op korte afstand van de woning gelegen zoals het grote park Schoneveld, winkelcentrum Castellum met NS-station maar ook mooie fietsroutes door de dorpen Schalkwijk, ’t Goy en Tull en ’t Waal vormen een uitnodiging om de directe omgeving en natuur beter te leren kennen.

Deze woning IJsselpolder 17 blinkt uit in ligging, prachtige woonkamer en het mooie perceel! Ben je net zo enthousiast als wij, wij maken graag een afspraak om je deze fraaie woning te laten zien!

INDELING:

BEGANE GROND:
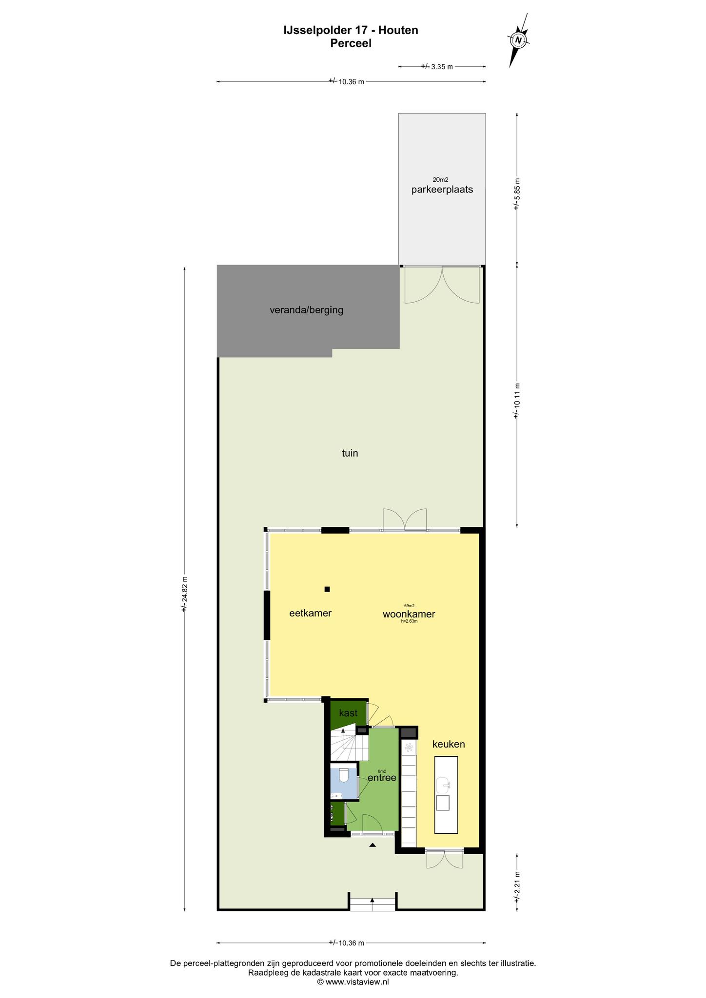
Entree/hal, meterkast, luxe toiletruimte met wandcloset en fontein, trapopgang naar eerste verdieping.

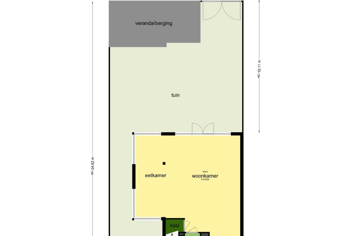
Toegang tot de zeer royale living van ruim 50 m2 met trapkast die is voorzien van een ‘kast-in-kast’. Aan voorzijde gesitueerde keukenopstelling voorzien van kookeiland met inductiekookplaat, afzuigschouw, vaatwasmachine (2019), combi-oven, inductiekookplaat en veel kastruimte. Dubbele tuindeuren naar terras.

Ruime achtertuin met veranda van ca. 15 m2 en stenen berging van 8m2. De zonligging is zuidoosten. De zijtuin beschikt over een poortdeur naar de achtertuin zodat je van het terras eenvoudig de achtertuin kunt bereiken. Aan de achtergevel is een groot elektrisch bedienbaar zonnescherm geplaatst.

EERSTE VERDIEPING:
Overloop met één slaapkamer aan de voorzijde en twee slaapkamers aan de achterzijde. De ruime slaapkamer aan de voorzijde is voorzien van een frans balkon en een vaste kast met daarachter extra ruimte in de trapkast. Moderne en separate toiletruimte met wandcloset en fontein. Aan de voorzijde is de licht betegelde badkamer gesitueerd die is ingericht met een ruime douchecabine (100 x 120 cm), wastafelmeubel, ligbad, designradiator en vloerverwarming. De badkamer is circa 7m2 groot.

De aan de achterzijde van de woning bevestigde rolluiken zijn elektrisch bedienbaar.

TWEEDE VERDIEPING:
Overloop, wasruimte met opstelling C.V.-ketel en de vierde slaapkamer van 10m2 met hoog plafond. Extra bergruimte op de bergzolder.

Bijzonderheden:
• Ervaar vrij wonen in een kindvriendelijke woonwijk;
• Ruime hoekwoning met een woonoppervlak van maar liefst 154m2 op een perceel van 261 m2;
• Gelegen op prachtige en geliefde locatie aan waterpartij;
• Royale living van ruim 50 m2 met uitbouw zij- en achterzijde;
• Begane grond voorzien van tegelvloer met vloerverwarming;
• Schilderwerk buiten zomer 2019;
• Tuin voor-en achterzijde aangelegd in 2018;
• Elektrisch zonnescherm aanwezig begane grond;
• Rolluiken aan de achterzijde van de woning zijn elektrisch;
• Eén parkeerplaats achterzijde woning (geen eigen terrein);
• Parkeren op eigen terrein mogelijk;
• Zowel dak veranda als stenen berging v.v. van sedumdak;
• Privacy biedende achtertuin met veranda, stenen berging en achterom;
• Voorzieningen zoals basisscholen, winkels en NS-station op korte afstand;
• Exact gemeten;
• Bekijk voor een indruk de video en plattegronden.

  • 154 m2
  • 261 m2
  • 4

Kenmerken IJsselpolder 17

Overdracht

Vraagprijs€ 695.000,- k.k.

Oppervlaktes en inhoud

Perceel oppervlakte261 m2
Woonoppervlakte154 m2
Inhoud555 m3

Bouw

SoortEengezinswoning
BouwvormBestaande bouw
Bouwjaar2009
Dak typeDwarskap
IsolatievormenVolledig geïsoleerd
EnergielabelA

Indeling

Aantal verdiepingen4
Aantal kamers5
Aantal slaapkamers4
Aantal badkamers1

Maandlasten

Ligging IJsselpolder 17

Voorzieningen

Centraal gelegen informatie over de buurt

Aantal inwoners

In de gemeente

49.300

Vergelijkbaar woningaanbod