Ga naar inhoud

Te koop: woonhuis Heidetuin 79 3994 PD Houten

Verkocht

€ 795.000,- k.k.

Droomhuis te Koop! Een woning met stijl en klasse, tot in perfectie afgewerkt en onderhouden, gelegen in één van de meest populaire woonwijken van Houten-zuid, De Tuinen!

Deze sfeervolle half vrijstaande en geschakelde woning met garage en zonnige tuin op het Westen beschikt over een hoog afwerkingniveau en laat niks meer te wensen over.
De prachtige jaren ’30 bouwstijl combineert de karakteristieke uitstraling van toen met de moderne en luxe gemakken van nu! Eenmaal binnen ben je meteen verkocht!

De sfeervolle woonkamer met houtkachel, draaibaar zodat je ook vanuit de keuken hier van kunt genieten, zorgt in de wintermaanden voor een huiselijke sfeer met een vleugje romantiek. De nieuw geplaatste maatwerk keuken bevindt zich aan de achterzijde van de woning in de uitgebouwde woonkeuken. Deze is uitgerust met topkwaliteit inbouwapparatuur van onder andere het merk Miele en beschikt onder andere over een wijnklimaatkast, Bora inductiekookplaat en een Quooker. Er is voldoende ruimte voor een groot formaat eettafel maar even gezellig zitten aan de bar van de keuken is natuurlijk ook mogelijk. De begane grond beschikt over vloerverwarming, airconditioning, nieuwe vensterbanken, nieuw geplaatste binnendeuren en spanplafonds met inbouwverlichting. Het mooie stalen frame tussen living en keuken, de zwarte kozijnen in combinatie met de mooie deuren zorgen hier voor de ‘finishing touch’!

Vanuit de keuken bereik je via de dubbele tuindeuren of de tuindeur de zonnige achtertuin die is gelegen op het Westen. Ook de achtertuin is met zorg aangelegd en voorzien van zonwering, nieuwe schuttingen voorzien van inlight verlichting en meerdere terrassen voorzien van keramische tegels. Aan zon in deze mooie tuin geen gebrek, het is van in de ochtend tot in de late uurtjes genieten! De aangebouwde stenen garage is vanuit de tuin bereikbaar of via de elektrische deur aan de voorzijde. De garage is voorzien van een tegelvloer, verwarming en heeft vaste maatwerk kasten waar je onder andere de afvalcontainers in kunt plaatsen en een houtopslag voor de houtkachel. Aan de voorzijde van de garage is er een overkapping aanwezig en is er parkeergelegenheid voor twee auto’s op de eigen oprit.

De eerste verdieping is ingedeeld met een ruime overloop die je toegang biedt tot de twee mooie slaapkamers, de kastenkamer met vaste schuifkasten en de in 2020 volledig vernieuwde exclusieve maatwerk badkamer. Luxe en comfort staan ook hier centraal. Er is een ruime inloopdouche aanwezig met regendouche, handdouche en sunshower. Verder tref je in deze badkamer een luxe wastafelmeubel aan met dubbele wastafels, spiegels met verwarming en verlichting, lades, houten opbergvakken, vloerverwarming, luxe wandcloset en een designradiator. Ook deze verdieping is afgewerkt met spanplafonds en inbouwspots, airconditioning en is als vloerafwerking gekozen voor een lichte visgraat parketvloer. De trappen naar de eerste en tweede verdieping zijn door het bedrijf ‘Upstairs’ opnieuw voorzien van een mooie houten afwerking.

De tweede verdieping is door de dwarskap zeer ruim te noemen, het is eenvoudig om op deze verdieping twee mooie slaapkamers te realiseren. Ook op deze verdieping is de afwerking uitstekend, vaste schuifkasten zorgen ervoor dat de wasapparatuur uit het zicht staat en de twee grote dakvensters zorgen voor een juiste lichtinval. Ook op deze verdieping is airconditioning aanwezig voor een aangenaam klimaat in zowel zomer als wintermaanden.

Het jonge bouwjaar van deze woning zorgt ervoor dat deze energiezuinig is gebouwd en uitstekend is geïsoleerd. Gasloos wonen is hier reeds een feit door de aansluiting op de stadsverwarming.

Woonwijk De Tuinen kenmerkt zich door de ruimtelijke opzet en zeer kindvriendelijke ligging, er zijn diverse basisscholen op loopafstand bereikbaar en binnen enkele wandelminuten ben je bij recreatieplas De Rietplas. Hier kun je met de kinderen genieten op de strandjes, heerlijk zwemmen, suppen of genieten van de nieuwjaarsduik. Zet koning winter echt door dan bind je je schaatsen onder en kun je uren schaatsen over de plas! Vanaf Heidetuin 79 wandel je ook zo naar winkelcentrum Castellum voor een boodschap, een keer uit eten of de trein; met circa 10 minuten sta je op Utrecht Centraal. Door al deze pluspunten begrijpen wij wel waarom deze woonwijk zo populair en geliefd is!

Er is veel te vertellen over deze woning en aan alles is gedacht, het leukste is natuurlijk om de woning zelf te komen bezichtigen, wij laten je met veel enthousiasme deze prachtige woning graag zien!

Bouwjaar: 2007. Perceel: 226 m2. Woonoppervlakte: 147 m2.

INDELING:

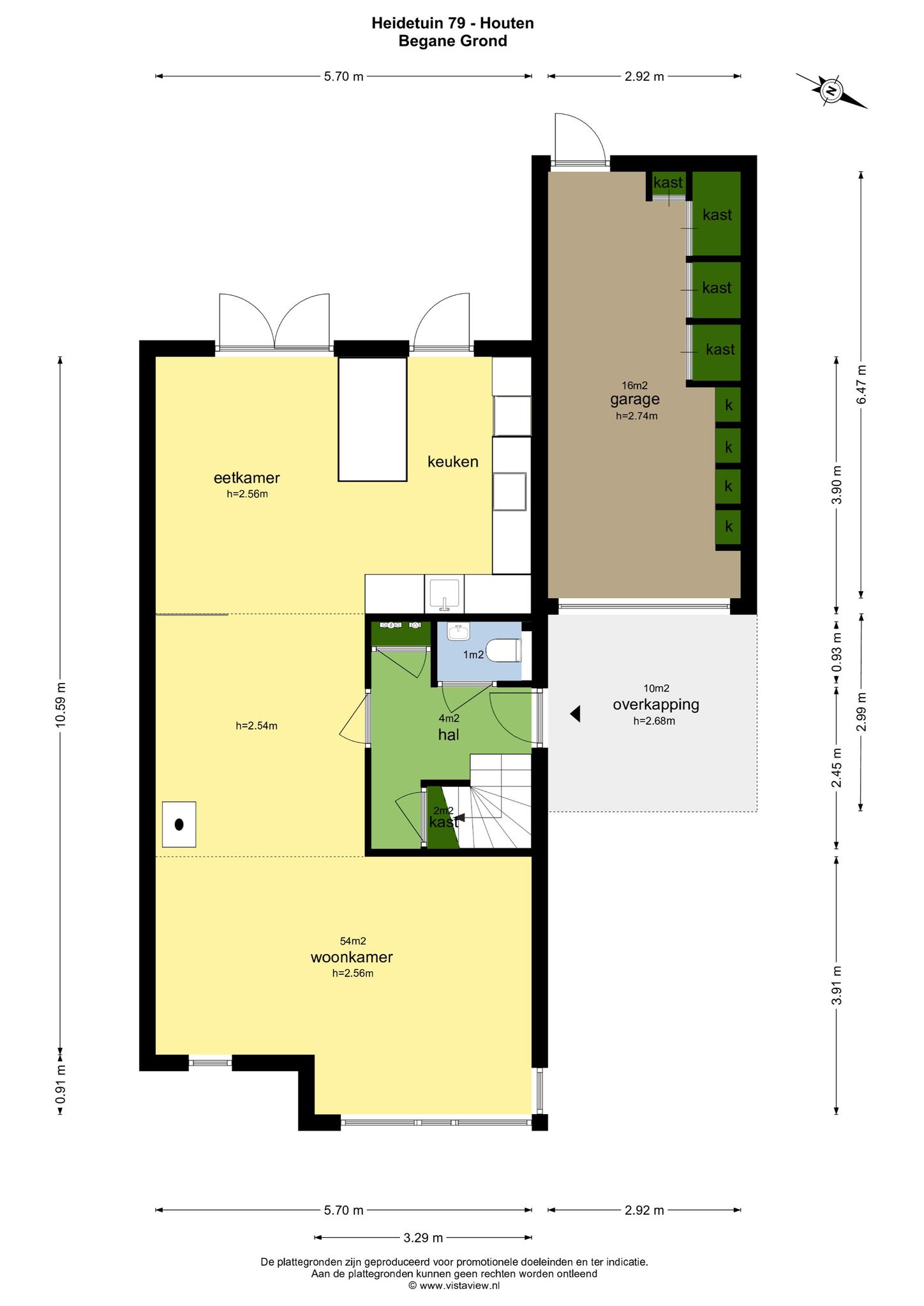
BEGANE GROND: oprit met parkeergelegenheid voor twee personenauto’s, overkapping en toegang tot garage en woonhuis.

Entree/hal aan de zijkant van de woning, luxe toiletruimte met wandcloset en fontein, meterkast, garderobe met vaste kast, pomp vloerverwarming en trapopgang naar eerste verdieping.

De woonkamer bevindt zich aan de voorzijde van de woning en heeft en mooie breedte van 5.70 meter. Brede doorgang naar de uitgebouwde woonkeuken met keukenopstelling die is voorzien van de volgende inbouwapparatuur: Miele wijnklimaatkast, Quooker, Liebherr koelkast, Miele combi-oven, Miele oven, Bora inductiekookplaat met geïntegreerd afzuigsysteem, Quooker, Miele vaatwasmachine, spoelbak en vaste kastruimte. Toegang tot achtertuin middels dubbele tuindeur vanuit de woonkeuken of de enkele deur vanuit de keuken. Deze deuren zijn voorzien van hor

De achtertuin is strak betegeld in combinatie met grind en er is een nieuwe schutting geplaatst met spots als opbouwverlichting. Aan de achtergevel is elektrische zonwering aanwezig.

Garage met elektrische deur, wateraansluiting en tuindeur. De garage heeft een afmeting van 2.92 meter bij 6.47 meter. Voorzien van vaste maatwerk kasten en een tegelvloer.

EERSTE VERDIEPING: overloop, badkamer voorzien van vloerverwarming, dubbele wastafel in ladekast, spiegels met verwarming en verlichting, wandcloset, designradiator, inloopdouche met handdouche, regendouche en sunshower.

Slaakamer achterzijde van 10 m2, kledingkamer met twee vaste schuifkasten, slaapkamer voorzijde van de woning over de volledige breedte van het woonhuis van 17 m2.

TWEEDE VERDIEPING: grote zolderverdieping van 29 m2 met mogelijkheid tot realiseren van twee slaapkamers. Deze verdieping beschikt over twee Velux dakvensters, airconditioning, vaste kastruimtes en plek voor de wasapparatuur. Door de vaste kasten staat de wasapparatuur uit het zicht. Deze verdieping is afgewerkt met een lichte laminaatvloer en licht schilderwerk.

BIJZONDERHEDEN:
-Schilderwerk binnenzijde 2021;
-Schilderwerk buitenzijde 2018;
-Badkamer volledig vernieuwd 2020:
-Maatwerk keuken geplaatst in 2018;
-A-merk inbouwapparatuur;
-Hemelwaterafvoeren uitgevoerd in zink;
-Iedere woonlaag beschikt over airconditioning (koelen en verwarmen);
-Tuin opnieuw aangelegd in 2020
-Woonkamer met draaibare houtkachel;
-Alarmsysteem aanwezig met aansluiting op alarmcentrale;
– Camerasysteem aanwezig;
-Binnendeuren en deurbeslag allemaal vernieuwd;
-Trapleuningen vervangen voor staal;
-Trappen opnieuw bekleed door Upstairs;
-Oprit met parkeerplaats voor twee personenauto’s;
-Oprit en tuin opnieuw opgehoogd en bestraat;
-Begane grond en eerste verdieping v.v. spanplafonds met inbouwverlichting;
-Woning is aangesloten op de stadsverwarming;
-Uitstekende ligging nabij winkelcentrum Castellum en NS-station;
-Op loopafstand van recreatieplas De Rietplas;
-Meerdere basisscholen bevinden zich op loop- of fietsafstand;
-Exact gemeten;
-Bekijk voor de indeling de digitale plattegronden.

  • 147 m2
  • 226 m2
  • 3

Kenmerken Heidetuin 79

Overdracht

Vraagprijs€ 795.000,- k.k.

Oppervlaktes en inhoud

Perceel oppervlakte226 m2
Woonoppervlakte147 m2
Inhoud608 m3

Bouw

SoortHerenhuis
BouwvormBestaande bouw
Bouwjaar2007
Dak typeDwarskap
IsolatievormenDakisolatie, Muurisolatie, Vloerisolatie, Dubbelglas, Volledig geïsoleerd, HR glas

Indeling

Aantal verdiepingen3
Aantal kamers5
Aantal slaapkamers3
Aantal badkamers1

Maandlasten

Ligging Heidetuin 79

Voorzieningen

Centraal gelegen informatie over de buurt

Aantal inwoners

In de gemeente

49.300

Leeftijd

in percentages van totaal

Huishoudsamenstelling

in percentages van totaal

10%

20% NL

23%

20% NL

67%

20% NL

Vergelijkbaar woningaanbod