Ga naar inhoud

Te koop: woonhuis Heemraadserf 48 3991 KA Houten

Verkocht

€ 695.000,- k.k.

Op loopafstand van het gezellige Oude Dorp van Houten, in woonwijk Het Erf , zeer ruim HELFT VAN DUBBEL WOONHUIS met royale en comfortabele indeling. Ben je op zoek naar een ruime woning voor je gezin of een woning met de mogelijkheid voor kantoor of praktijk aan huis, maak dan zeker een afspraak voor een bezichtiging!

Deze onder architectuur gebouwde woning, type herenhuis, heeft een mooie indeling met speelse details zoals de ronde erkers met balkons en een karaktervolle uitstraling. De ligging is uitstekend, gelegen aan een groene en brede straat geniet je vanuit de woning van het vrije uitzicht op bomen en groen.

De woning heeft een ruimtelijke indeling waaronder een lichte woonkamer met erker, een royale woonkeuken en een praktische bijkeuken met vaste kastenwand en opstelplaats voor de wasapparatuur. Vanuit deze ruimte is de kantoor- / praktijkruimte bereikbaar. Een vaste trap leidt vanuit de kantoorruimte naar de tweede kantoorruimte of slaapkamer op de eerste verdieping. Deze kamer op de garage heeft mooie lichtinval door de dakramen en kan gebruikt worden als kantoor of slaapkamer. De besloten achtertuin is gelegen op het zonnige Westen. In de woonkeuken en woonkamer is een eiken visgraatvloer aanwezig die enkele jaren geleden nieuw is gelegd.

Op de eerste verdieping zijn drie mooie ruimtes aanwezig; twee slaapkamers en de slaap-/ kantoorruimte. De grote slaapkamer aan de voorzijde kan worden gesplitst in twee kamers. De dubbele balkondeuren geven je toegang tot het speelse balkon met leuk zicht de straat in. De slaapkamer aan de achterzijde beschikt eveneens over een balkon. Ook tref je op deze verdieping de lichte badkamer aan voorzien van douche, tweede w.c. en een ligbad. De overloop geniet van een mooie lichtinval door het trappenhuis met erker en raampartijen.

De grote tweede verdieping heeft een mooie oppervlakte en is ingedeeld met een ruimte voor de c.v.-ketel en een grote slaapkamer. Deze grote slaapkamer kan eveneens worden opgesplitst in twee kamers. Zeer geschikt voor nog thuiswonende kinderen! Extra bergruimte is gerealiseerd op de bergzolder en bereikbaar via de vlizotrap.

Wil je centraal wonen in Houten met alle voorzieningen binnen handbereik? Dan is de locatie van deze woning echt uitstekend, alle voorzieningen liggen op fiets- of loopafstand, zo kun je naar het theater, bioscoop, horeca, winkels voor je dagelijkse boodschappen en uiteraard ben je binnen enkele minuten met de trein vanaf het NS-station in hartje Utrecht. Kortom een woning die je in je zoektocht niet mag overslaan!

INDELING:
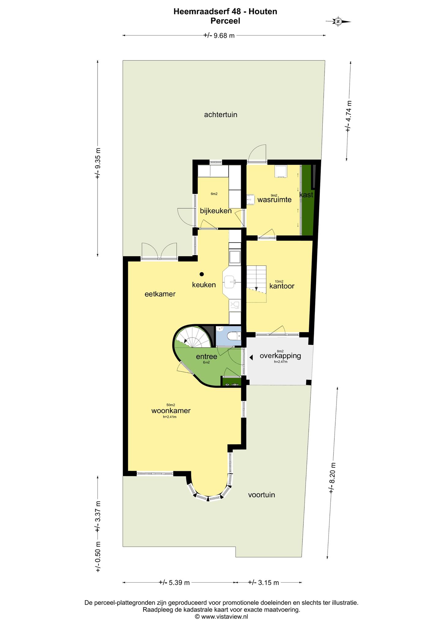
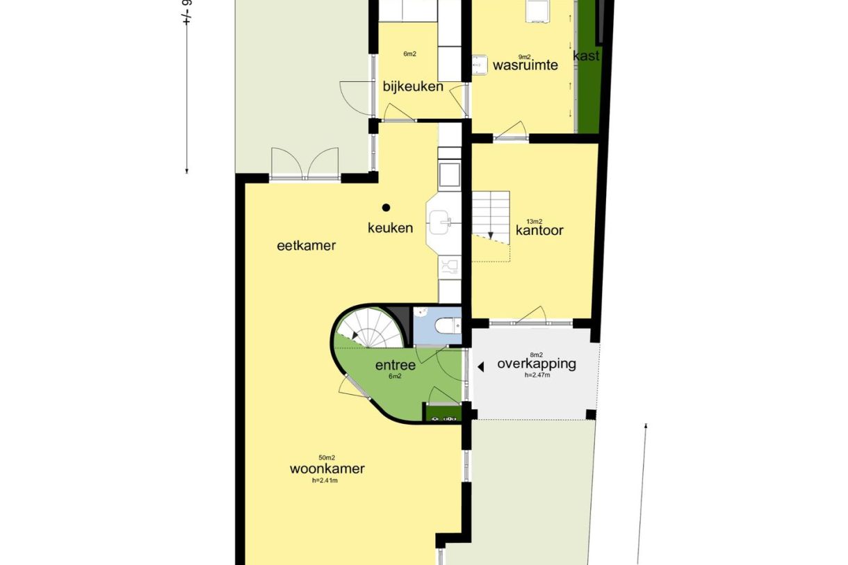
BEGANE GROND:
Oprit met parkeergelegenheid voor één of twee personenauto’s op eigen terrein.

Entree, hal, toilet met fontein, meterkast, trap naar verdieping en toegang tot de woonkamer met erker en open keuken (circa 50 m2) met dubbele tuindeuren naar de achtertuin. Bijkeuken met keukenblok met granieten aanrechtblad en kastruimte. Inpandige berging (ca. 10 m2) met vaste schuifkastenwand, aansluiting voor wasmachine en droger, uitstortgootsteen, deur naar kantoorruimte en deur naar achtertuin.

De achtertuin is gelegen op het Westen met altijd wel een plek in de zon en schaduw. Deze tuin is netjes bestraat en onderhoudsvriendelijk aangelegd.

KANTOOR BEGANE GROND EN EERSTE VERDIEPING:
De voormalige garage is omgebouwd tot kantoor aan huis en heeft een eigen entree aan de voorzijde van de woning. Het kantoor is circa 14 m2 groot met een trap naar de bovengelegen extra kantoorruimte (- of slaapkamer). Het kantoor of werkplek op de eerste verdieping van ca. 16 m2 heeft drie dakramen, elektrische vloerverwarming en airconditioning. Interne deur met toegang tot het woonhuis op de eerste verdieping.

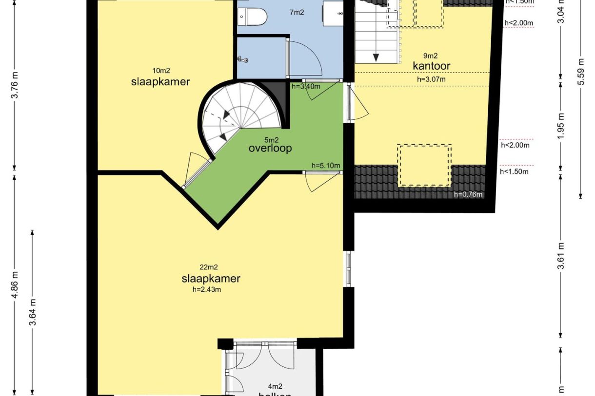
EERSTE VERDIEPING:
Speelse overloop met trap naar de tweede verdieping, toegang tot twee slaapkamers (dit waren voorheen drie kamers), badkamer met douchecabine, toilet, ligbad en wastafelmeubel. De slaapkamer aan de voorzijde beschikt over twee dubbele deuren naar het balkon. De slaapkamer aan de achterzijde heeft eveneens een balkon die bereikbaar is via dubbele balkondeuren.

Vanaf de overloop is de kantoorruimte op de voormalige garage bereikbaar.

TWEEDE VERDIEPING:
Overloop met veel lichtinval door de raampartijen in de erker, vide, voorzolder met C.V.-ketel (Nefit 2015) en bergruimte.

Royale slaapkamer die gesplitst kan worden in twee kamers. De vlizotrap brengt je op de zolderberging voor veel extra bergruimte (stahoogte circa 1.60 meter)

BIJZONDERHEDEN:
-Centrale ligging aan rand van ‘Oude Dorp’;
-Gezellige terrassen en horeca op loopafstand;
-Gelegen nabij groot speelveld;
-Zeer geschikt voor werken aan huis;
-Kantoorruimtes kunnen ook als slaapkamers worden gebruikt;
-Kantoorruimte begane grond heeft eigen ingang;
-Parkeren op eigen terrein, ideaal voor elektrische voertuigen;
-Meerdere slaapkamers mogelijk;
-Parkeren op eigen terrein;
-Begane grond v.v. massieve visgraatvloer;
-Keurige en besloten tuin op het Westen;
-Veel opbergmogelijkheden aanwezig;
-Speelse indeling;
-Vele voorzieningen op loopafstand zoals winkels en NS-station;
-Nabij uitvalswegen;
-Energielabel B.

  • 176 m2
  • 226 m2
  • 3

Kenmerken Heemraadserf 48

Overdracht

Vraagprijs€ 695.000,- k.k.

Oppervlaktes en inhoud

Perceel oppervlakte226 m2
Woonoppervlakte176 m2
Inhoud628 m3

Bouw

SoortHerenhuis
BouwvormBestaande bouw
Bouwjaar1997
Dak typeZadeldak
IsolatievormenVolledig geïsoleerd
EnergielabelB

Indeling

Aantal verdiepingen4
Aantal kamers6
Aantal slaapkamers3
Aantal badkamers1

Maandlasten

Ligging Heemraadserf 48

Voorzieningen

Centraal gelegen informatie over de buurt

Aantal inwoners

In de gemeente

49.300

Vergelijkbaar woningaanbod