Ga naar inhoud

Te koop: woonhuis Fluweelmos 27 3994 KN Houten

Verkocht

€ 495.000,- k.k.

Aan een brede en groene laan in woonwijk Het Mos bieden wij je te koop aan dit ROYALE HERENHUIS met een woonoppervlak van 133 m2! De woning heeft een zeer comfortabele indeling waaronder een UITGEBOUWDE WOONKAMER, een lichte WOONKEUKEN met moderne keukenopstelling, een MODERNE BADKAMER met ligbad én douche en totaal VIJF SLAAPKAMERS! De heerlijke tuin heeft een zonnige ligging waar je tot in de late uurtjes kunt genieten! Een fijne gezinswoning die garant staat voor vele jaren woongenot!

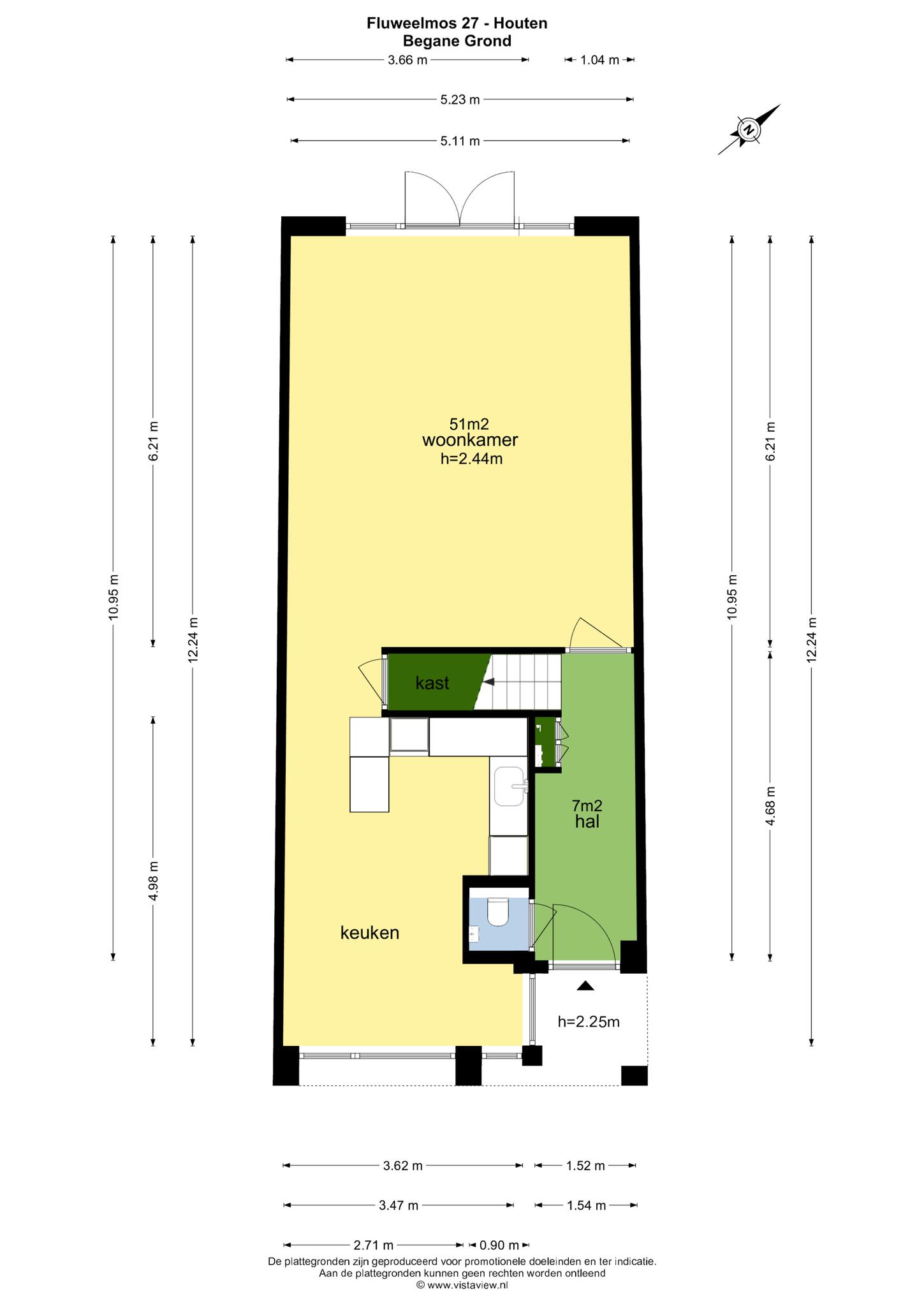
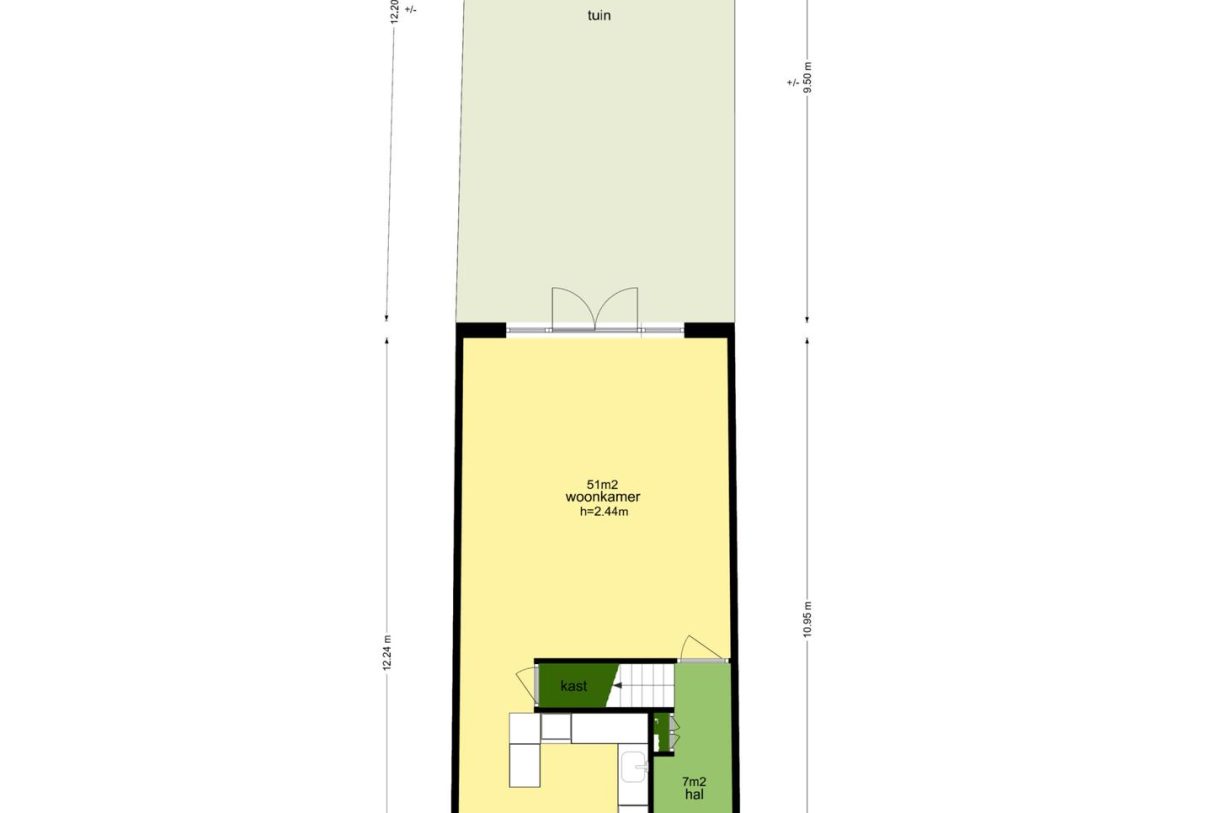
Kenmerkend voor deze fraaie woning zijn de uitstekende ruimtes binnenshuis met veel lichtinval. Op de begane grond tref je een mooie uitgebouwde woonkamer aan waarbij de dubbele tuindeuren je meteen toegang bieden tot de zonnig gelegen achtertuin. De tuin is netjes aangelegd en je hebt hier de beschikking over een zonnig terras, een ruime geïsoleerde berging en de achterom. In de tuin tref je ook diverse fruitbomen aan! De moderne keuken is gesitueerd aan de voorzijde van de woning. Hier heb je de mogelijkheid tot het plaatsen van een groter formaat eettafel. Een echte leefkeuken dus! De keuken is compleet uitgevoerd, heeft een praktische opstelling en is voorzien van inbouwapparatuur. De gehele begane grond is afgewerkt met een laminaatvloer en de wanden zijn voorzien van stucwerk.

Op de eerste verdieping zijn drie slaapkamers aanwezig. De complete en moderne badkamer is voorzien van een ruime inloopdouche, ligbad, designradiator, spiegel met verwarming, wandcloset en een wastafelcombinatie. Heerlijk is ook hier de lichtinval die door het te openen raam naar binnen valt! De grote overloop is uitgerust met een vaste kastenwand ten behoeve extra opbergruimte.

Ook de tweede verdieping is optimaal ingedeeld! Hier tref je twee slaapkamers aan waarvan één is voorzien van een vaste kastenwand en de wasruimte. Deze wasruimte beschikt over een opstelplaats voor de wasapparatuur, c.v.-ketel en mechanische ventilatiebox.

Deze fraaie en complete woning is gesitueerd in geliefd gedeelte van de gemeente Houten met basisscholen, uitvalswegen en natuurlijk recreatieplas De Rietplas op korte afstand. Wil je boodschappen doen of maak je gebruik van het openbaar vervoer? Geen probleem, winkelcentrum Castellum met haar NS-station bevindt zich op korte afstand van de woning.

INDELING:

BEGANE GROND: voortuin, entree/hal, luxe toiletruimte met wandcloset en fontein, garderobe, meterkast en trapopgang naar eerste verdieping. Toegang tot de royale en tuingerichte woonkamer van 5.11 meter breed met dubbele tuindeuren, raamkozijn en achtertuin op het Westen. De tuin beschikt over een houten geïsoleerde berging en een achterom.

Keuken aan de voorzijde van de woning voorzien van de volgende inbouwapparatuur: koel- en vriescombinatie, spoelbak, direct kokend waterkraan (Franke) oven, vaatwasmachine, inductiekookplaat met afzuigschouw en vaste kastruimte.

EERSTE VERDIEPING: ruime overloop met vaste schuifkast, twee slaapkamers aan de achterzijde van de woning en een slaapkamer die is gesitueerd naast de badkamer, aan de voorzijde.
De slaapkamers zijn 13, 8 en 8 m2 groot.

Moderne en licht betegelde badkamer met ruime inloopdouche, ligbad, designradiator, spiegel met verwarming, wandcloset en een wastafelcombinatie.

TWEEDE VERDIEPING: ruime en lichte overloop, bergruimte met opstelplaats voor wasapparatuur, cv-ketel en mechanische ventilatiebox. De twee (slaap)kamers (waarvan één met vaste schuifkast) zijn 5 en 7 m2 groot.

BIJZONDERHEDEN:

-Eengezinswoning bij uitstek;
-Comfortabele indeling;
-Uitgebouwde woonkamer;
-Gezellige woonkeuken aan de voorzijde van de woning;
-Gehele woning voorzien van keurige laminaatvloeren;
-5 slaapkamers;
-Heerlijke achtertuin met o.a. enkele fruitbomen;
-Mooie ligging aan groenstrook;
-Gunstig gelegen t.o.v. scholen, winkels, recreatieplas en uitvalswegen;
-Energielabel A;
-Exact gemeten;
-Bekijk de plattegronden en video voor een goede indruk!

  • 133 m2
  • 161 m2
  • 5

Kenmerken Fluweelmos 27

Overdracht

Vraagprijs€ 495.000,- k.k.
AanvaardingIn overleg

Oppervlaktes en inhoud

Perceel oppervlakte161 m2
Woonoppervlakte133 m2
Inhoud442 m3

Bouw

SoortEengezinswoning
BouwvormBestaande bouw
Bouwjaar2001
Dak typePlat dak
IsolatievormenVolledig geïsoleerd
EnergielabelA

Indeling

Aantal verdiepingen3
Aantal kamers6
Aantal slaapkamers5
Aantal badkamers1

Maandlasten

Ligging Fluweelmos 27

Voorzieningen

Centraal gelegen informatie over de buurt

Aantal inwoners

In de gemeente

49.300

Leeftijd

in percentages van totaal

Huishoudsamenstelling

in percentages van totaal

20%

20% NL

27%

20% NL

53%

20% NL

Vergelijkbaar woningaanbod