€ 589.000,- k.k.
Sommige woningen mag je in je zoektocht echt niet overslaan! Dit is zo’n woning, fantastisch onder architectuur uitgebouwd, niet alleen aan de achterzijde maar ook de gehele zijkant is in deze verbouwing meegenomen waardoor er op de begane grond prachtige en lichte ruimtes zijn ontstaan!
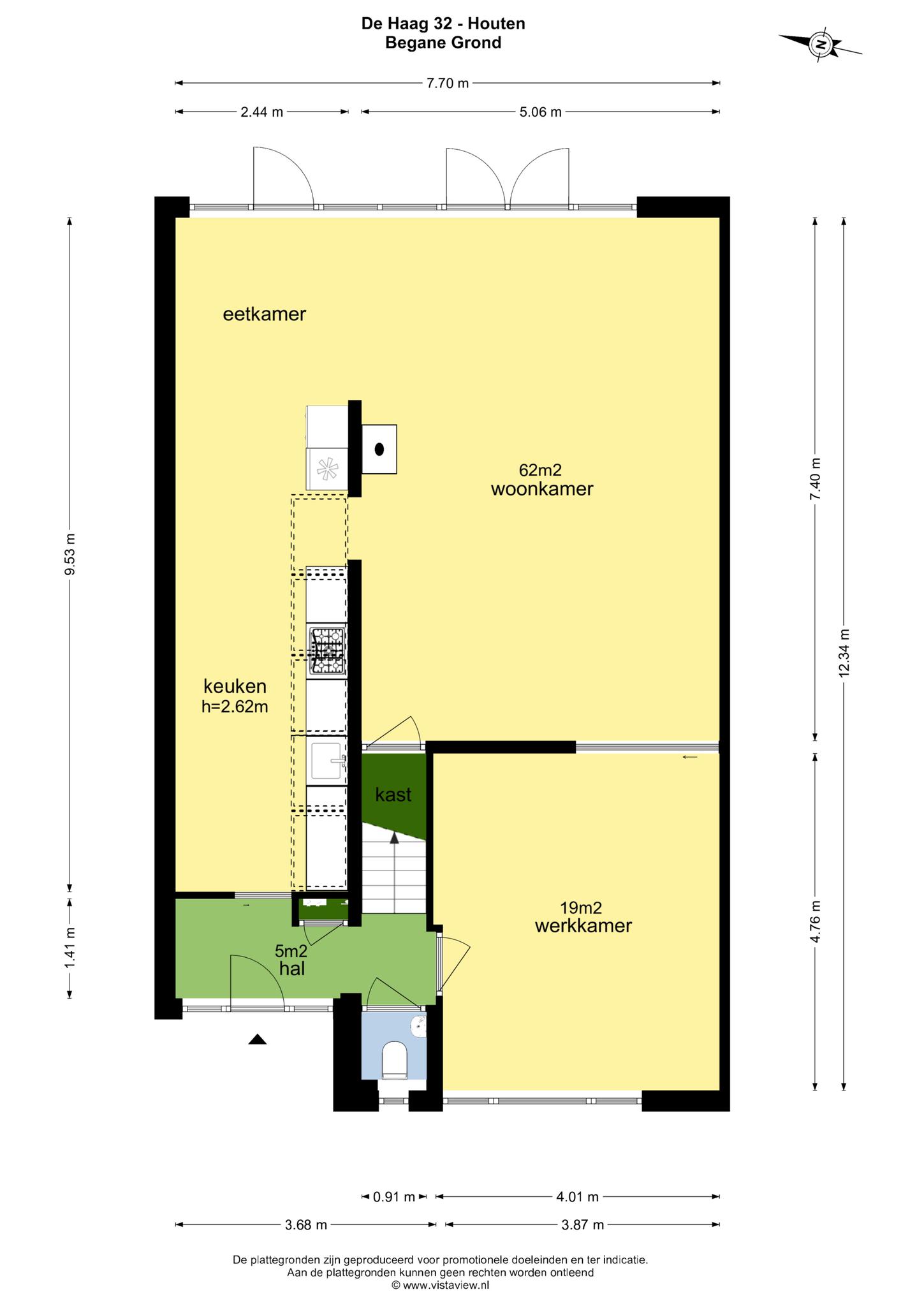
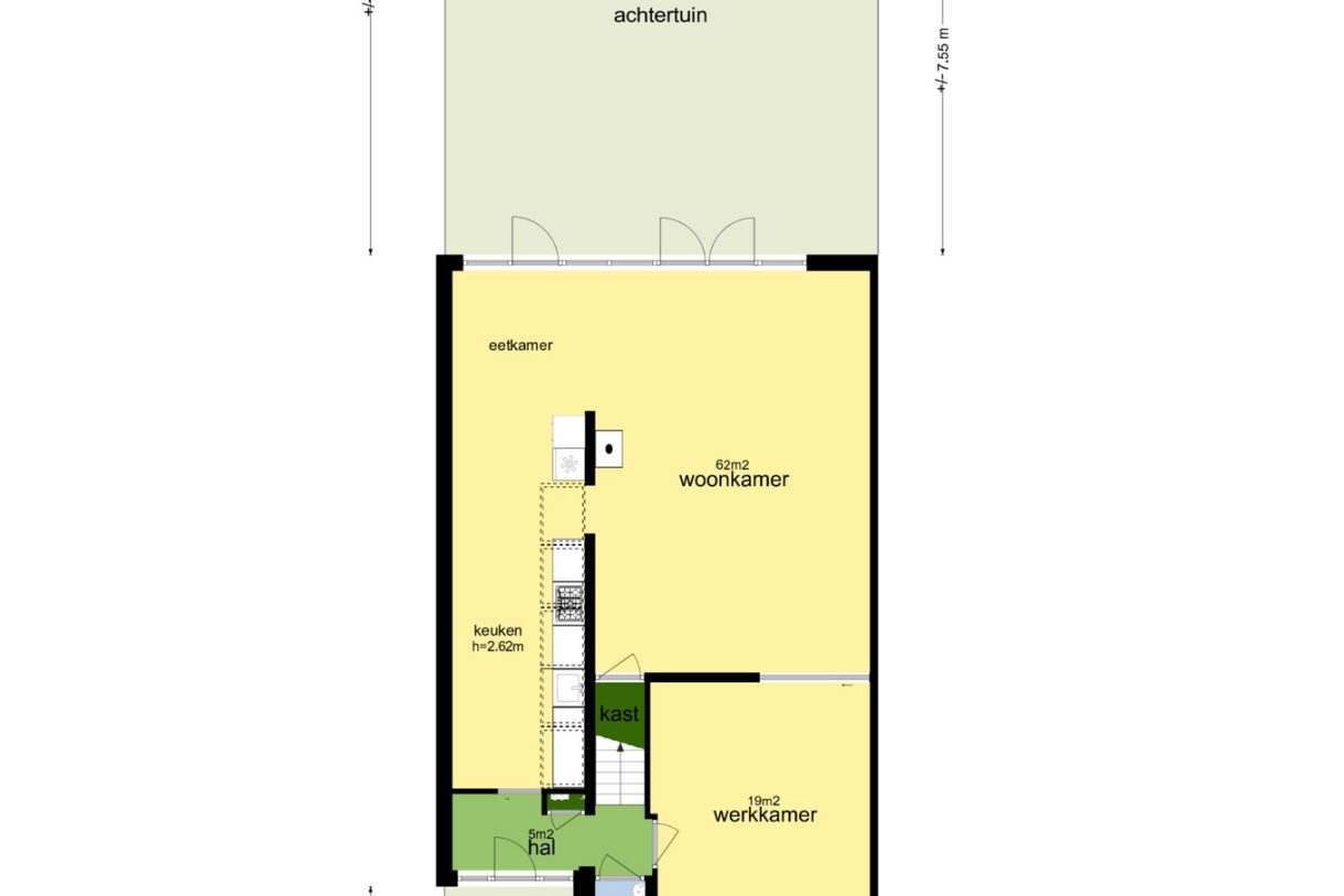
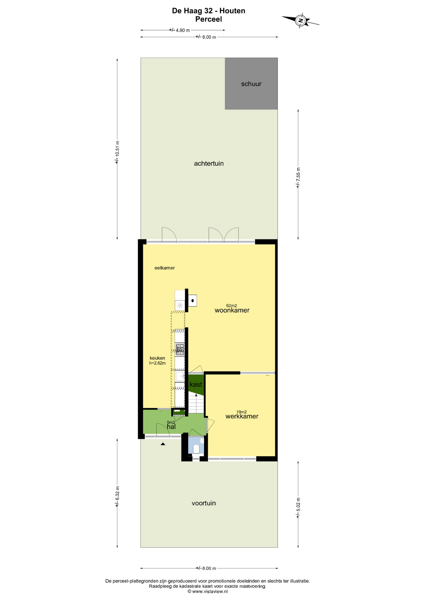
Deze hoekwoning is gesitueerd op een mooi en ruim bemeten perceel van 224 m2. Door de gunstige ligging van de woning op dit perceel was het mogelijk om optimaal uit te bouwen. Zo is de entree van de woning verplaatst naar de zijkant zodat er een mooie entree en hal zijn ontstaan. Hierachter is de prachtige keuken geplaatst die veel lichtinval geniet door een mooie lichtstraat aan de bovenzijde. De woonkamer is extra groot en heeft een breedte van 7.70 meter, over de volledige breedte van het perceel! Door ook uit te bouwen aan de achterzijde zijn er mooie meters woonoppervlak ontstaan. Door de grote raampartijen in combinatie met de dubbele tuindeuren en de tuindeur heeft de woonkamer, net als de keuken, ook een mooie lichtinval. Extra sfeer wordt gecreëerd door de gashaard! Aan de voorzijde van de woning, op de plaats waar voorheen de keuken stond en de entree met hal aanwezig was, is een grote werkkamer van 19 m2 ontstaan. Ideaal voor als je thuiswerkt of je eigen praktijk wenst. De gehele begane grond is fraai afgewerkt met glad stucwerk wanden en plafonds en een fraaie eiken vloer. In de keuken is een tegelvloer aanwezig. De ruimtes zijn af te sluiten door paneeldeuren en een mooie schuifdeur tussen de werkkamer en living.
Op de eerste verdieping tref je de traditionele drie slaapkamers aan en de keurige badkamer. Deze badkamer is voorzien van een ligbad, een douche, wandcloset en een wastafelmeubel. De slaapkamer aan de voorzijde is voorzien van een eigen wastafel en heeft een nieuw kunststof kozijn.
Op de tweede verdieping is een mooie indeling gemaakt. Beter kan eigenlijk niet, twee slaapkamers en een mooie bergzolder die je bereikt door middel van een vlizotrap. De slaapkamer aan de achterzijde is uitgerust met een brede en grote dakkapel, de voorzijde heeft geen dakkapel nodig door de gunstige kapconstructie waarbij de gevel deels is opgetrokken! De voorzolder biedt plaats aan nog een extra wastafel, de witgoedapparatuur, c.v.-ketel en de omvormer voor de zonnepanelen.
Ook aan duurzaamheid is gedacht, de woning is recent voorzien van tien zonnepanelen die hun steentje bijdragen aan een lage energierekening!
Deze unieke hoekwoning heeft een woonoppervlakte van maar liefst 162 m2, de prachtige uitbouw aan de zij- en achterzijde van de woning zorgen voor een woonkamer die je niet snel zult tegenkomen in je zoektocht naar jouw nieuwe [t]huis! Ben je net zo enthousiast als ons, bel ons voor een afspraak, wij laten de woning graag aan je zien!
INDELING:
BEGANE GROND: Entree/hal aan de zijkant van de woning, meterkast, toiletruimte met wandcloset en fonteintje, trapopgang, toegang tot de aangebouwde keuken door middel van paneelschuifdeur en werkkamer van 19 m2. De aangebouwde, moderne keuken is voorzien van diverse inbouwapparatuur zoals een gaskookplaat, afzuigschouw, vaatwasmachine, 10 liter close-in boiler, oven en pannenlades. De keuken is uitgerust met vloerverwarming! De bestaande radiatoren zijn vervangen door designradiatoren.
Via de keuken bereikt u de ruime, uitgebouwde woonkamer met gestucte wanden en plafonds, eikenhouten vloer, gashaard en toegang tot de achtertuin d.m.v. dubbele tuindeuren of de enkele deur. De werkkamer aan de voorzijde van de woning is af te sluiten door het gebruik van een grote en lichte schuifwand.
De fraaie achtertuin is voorzien van sierbestrating, een achterom en een stenen berging met kunststof kozijnen.
EERSTE VERDIEPING: Overloop, toegang tot 3 slaapkamers van 13 m2, 12 m2 en 6 m2, toegang tot de badkamer en een vaste trap naar de tweede verdieping. De ruime badkamer met ligbad, tweede toilet, wastafelmeubel en douche is licht getegeld. De slaapkamer aan de voorzijde van de woning beschikt over een wastafel en is uitgevoerd met een kunststofkozijn.
TWEEDE VERDIEPING: Voorzolder met toegang tot de twee slaapkamers van 13 m2 en 8 m2. De slaapkamer aan de voorzijde van 8 m2 profiteert van extra ruimte door de gebroken kapconstructie. De slaapkamer aan de achterzijde van de woning is voorzien van een dakkapel. Voldoende bergruimte aanwezig op de bergzolder die je bereikt via de vlizotrap.
Op de voorzolder bevindt zich de c.v.-ketel van het merk Vaillant uit het jaar 2013. Verder tref je op de voorzolder de mechanische ventilatie box aan, de opstelplaats voor witgoedapparatuur, een extra wastafel en de omvormer voor de 10 zonnepanelen.
BIJZONDERHEDEN:
• Onder architectuur uitgebouwde hoekwoning op ruim perceel van 224 m2;
• Indeling begane grond geheel gewijzigd;
• Royale living met werkkamer van 19 m2;
• Keuken en woonkamer circa 62m2 groot;
• Keuken voorzien van mooie lichtstraat en vloerverwarming;
• Buitenschilderwerk 2022;
• Begane grond voorzien van glad gestukte wanden en plafonds;
• Badkamer met douche, ligbad, wastafelmeubel en wandcloset;
• Energielabel C;
• Kozijnen eerste en tweede verdieping voorzijde kunststof;
• Ruime tuin met stenen berging met zadeldakje en een achterom;
• Tien zonnepanelen (geplaatst in december 2022);
• Woning wordt verwarmd d.m.v. c.v.-gas Vaillant 2013;
• De woning is gunstig gelegen nabij uitvalswegen, winkels, openbaar vervoer en fietsroutes door natuurgebied richting Utrecht en Bunnik;
• Exact gemeten;
• Voor de indeling bekijk de digitale plattegronden.
- 162 m2
- 224 m2
- 6
Kenmerken De Haag 32
Overdracht
| Vraagprijs | € 589.000,- k.k. |
|---|---|
| Aanvaarding | In overleg |
Oppervlaktes en inhoud
| Perceel oppervlakte | 224 m2 |
|---|---|
| Woonoppervlakte | 162 m2 |
| Inhoud | 591 m3 |
Bouw
| Soort | Eengezinswoning |
|---|---|
| Bouwvorm | Bestaande bouw |
| Bouwjaar | 1982 |
| Dak type | Zadeldak |
| Isolatievormen | Volledig geïsoleerd |
| Energielabel | C |
Indeling
| Aantal verdiepingen | 4 |
|---|---|
| Aantal kamers | 7 |
| Aantal slaapkamers | 6 |
| Aantal badkamers | 1 |
Maandlasten
Ligging De Haag 32
Voorzieningen
Centraal gelegen informatie over de buurt
Aantal inwoners
In de gemeente
49.300