Ga naar inhoud

Te koop: woonhuis Kweldam 16 4121 EG Everdingen

Verkocht

€ 545.000,- k.k.

Op een ruim perceel van 656 m2, in rustige woonomgeving gelegen, bieden wij u te koop aan deze goed onderhouden VRIJSTAANDE WONING met RUIME GARAGE, KELDERPARTIJ en een levensloopbestendige indeling! Wilt u wonen en slapen op de begane grond, maak dan een afspraak voor een bezichtiging!

De woning is gelegen in een rustige woonstraat en heeft parkeergelegenheid voor meerdere auto’s op eigen terrein voor de garage. De indeling is comfortabel, via de ruime hal heeft u toegang tot de woonkamer met open haard, aangebouwde serre met mooi en vrij zicht op de ruime achtertuin, keukenopstelling, bijkeuken met doorgang naar royale badkamer en de twee slaapkamers.

Op de verdieping treft u een grote ruimte aan waar u de mogelijkheid heeft tot realiseren van één of twee slaapkamers.

In de bijkeuken bereikt u de kelderpartij. Hier treft u extra bergruimte aan en heeft u een mooi plek voor bijvoorbeeld uw wijnvoorraad.

Nagenoeg de gehele woning is voorzien van kunststof kozijnen met isolatieglas. Verwarming en warm water door middel van c.v.-gas.

Deze vrijstaande woning is gebouwd in 1957 en dient aan de binnenzijde gemoderniseerd te worden. Hierna zal de woning weer garant staan voor vele jaren woonplezier op een mooie en rustige locatie!

Bouwjaar: 1957
Perceel: 656 m2 (539 en 117 m2)
Woonoppervlak: 148 m2
Garage: 25 m2;
Overkapping achter garage: 25m2.
Overig inpandige ruimte: 13 m2 (kelder).

INDELING:

BEGANE GROND:
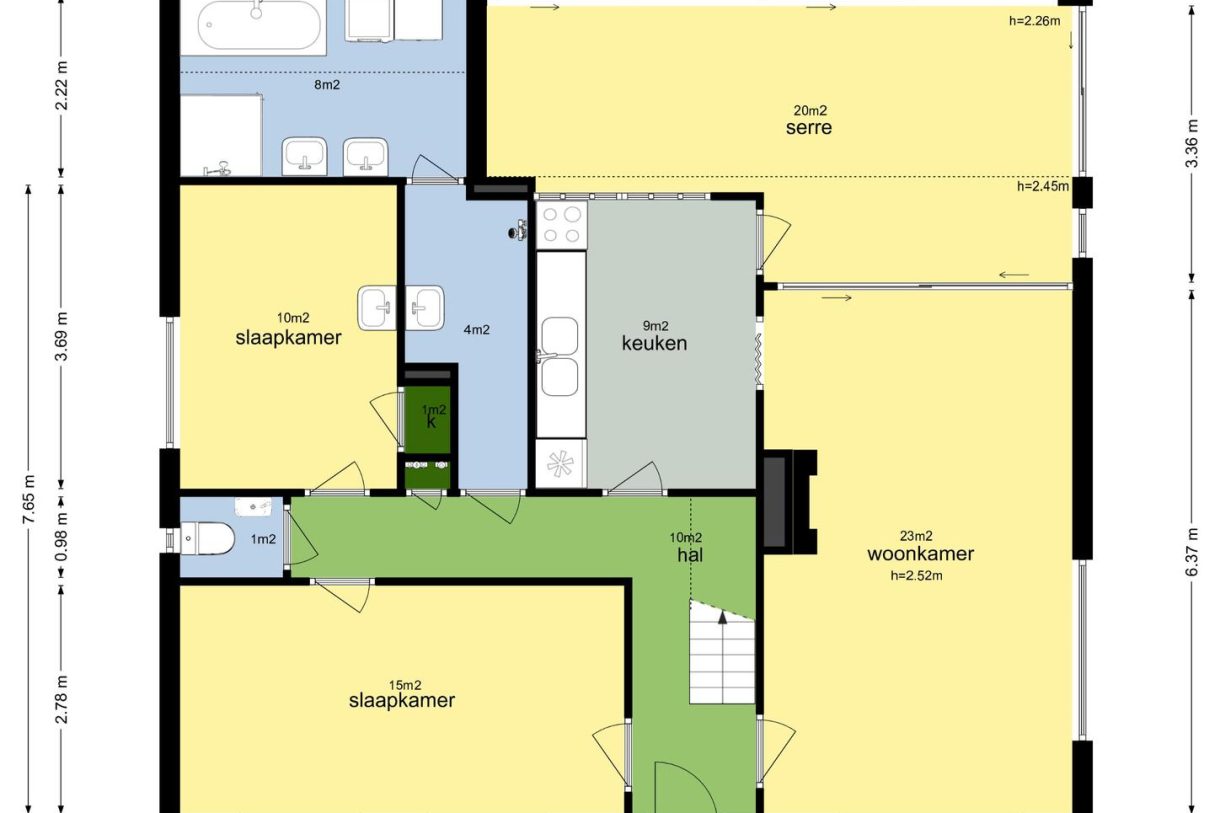
Entree/hal met trapopgang naar eerste verdieping, gang met toegang tot woonkamer van 23m2 met haardpartij en schuifpui naar ruime en lichte serre van 20m2. De gang biedt tevens toegang tot de keuken van 9m2, de bijkeuken van 4 m2, meterkast en de badkamer van 8 m2 met dubbele wastafel, ligbad, douchecabine en de opstelplaats voor de wasapparatuur.

EERSTE VERDIEPING: De zolder is bereikbaar via de vaste trap en beschikt over een vaste kast en 3 dakvensters. U heeft hier de mogelijkheid tot het realiseren van één of twee slaapkamers.

KELDER: deze kelder bereikt u via de bijkeuken. De afmeting is 4.00m x 3.45m en heeft een stahoogte van 1.97 meter.

BIJZONDERHEDEN:
– Vrijstaand woonhuis met een woonoppervlak van 148 m2;
– Levensloopbestendig wonen op een rustige locatie;
– Ruim perceel grond van 656 m2;
– Twee slaapkamers begane grond van 15m2 en 10m2;
– Woning voorzien van kelder;
– Begane grond voorzien van kunststof kozijnen met isolatieglas;
– Grote serre met kunststof schuifpui met toegang tot achtertuin;
– De woonkamer en serre zijn gescheiden d.m.v. schuifpui;
– Oprit met parkeerplaats voor meerdere personenauto’s;
– Energielabel G;
– Ouderdoms-, asbest- en zelf niet bewoningsclausule van toepassing;
– Laat je meenemen voor een tour door de woning door de video te bekijken op onze website of op Funda;
– Exact gemeten.

Geïnteresseerd in de woning? Schakel direct jouw eigen NVM-aankoopmakelaar in.

  • 148 m2
  • 656 m2
  • 2

Kenmerken Kweldam 16

Overdracht

Vraagprijs€ 545.000,- k.k.

Oppervlaktes en inhoud

Perceel oppervlakte656 m2
Woonoppervlakte148 m2
Inhoud534 m3

Bouw

SoortEengezinswoning
BouwvormBestaande bouw
Bouwjaar1957
Dak typeZadeldak
IsolatievormenGrotendeels dubbelglas
EnergielabelG

Indeling

Aantal verdiepingen3
Aantal kamers4
Aantal slaapkamers2
Aantal badkamers1

Maandlasten

Ligging Kweldam 16

Voorzieningen

Centraal gelegen informatie over de buurt

Aantal inwoners

In de gemeente

19.714

Leeftijd

in percentages van totaal

Huishoudsamenstelling

in percentages van totaal

23%

20% NL

35%

20% NL

42%

20% NL

Vergelijkbaar woningaanbod